Property Description
*** Guide Price £375,000-£400,000 ***
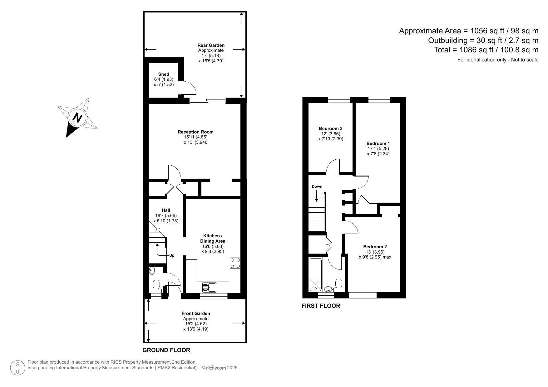
Spacious ground floor split level purpose built maisonette benefitting from three double bedrooms, ground floor wc, pleasant rear garden, and ample storage.
Set within the popular Upper Sydenham area, ideal for Sydenham Station, independent shops in Kirkdale, Wells Park and Crystal Palace Park
- Three Double Bedrooms
- Split level Maisonette
- Leasehold
- Ground Floor
- 16' Kitchen/Diner
- Total floor area 97sqm
- Pleasant Rear Garden
- Ground Floor WC
- Situated in the popular Upper Sydenham area
- Ideal for Sydenham Station, independent shops in Kirkdale, Wells Park and Crystal Palace Park
Rooms
Entrance HallPart opaque double glazed entrance door, radiator, laminate flooring.
Ground Floor WCOpaque double glazed window to front, low level wc, wall mounted wash hand basin, tiled flooring.
LoungeDouble glazed sliding door to garden, radiator, built in cupboard, laminate flooring.
Kitchen/DinerDouble glazed window to front, radiator, range of wall and base units with work surface over , one bowl stainless steel sink unit with mixer tap, space for cooker, extractor fan, space for fridge/freezer, plumbed for washing machine, wall mounted boiler, tiled flooring.
Bedroom OneDouble glazed window to front, radiator, built in wardrobe, laminate flooring.
Bedroom TwoDouble glazed window to rear, radiator, laminate flooring.
Bedroom ThreeDouble glazed window to rear, radiator, built in wardrobe, laminate flooring.
BathroomOpaque double glazed window to front, three piece bathroom suite comprising of: panelled bath with mixer tap and shower attachment, pedestal wash hand basin with mixer tap, low level wc, part tiled walls, heated towel rail, tiled flooring.
Rear GardenMainly paved, shrub borders, brick built storage shed.
Front GardenPaved, bark area, brick built storage.
