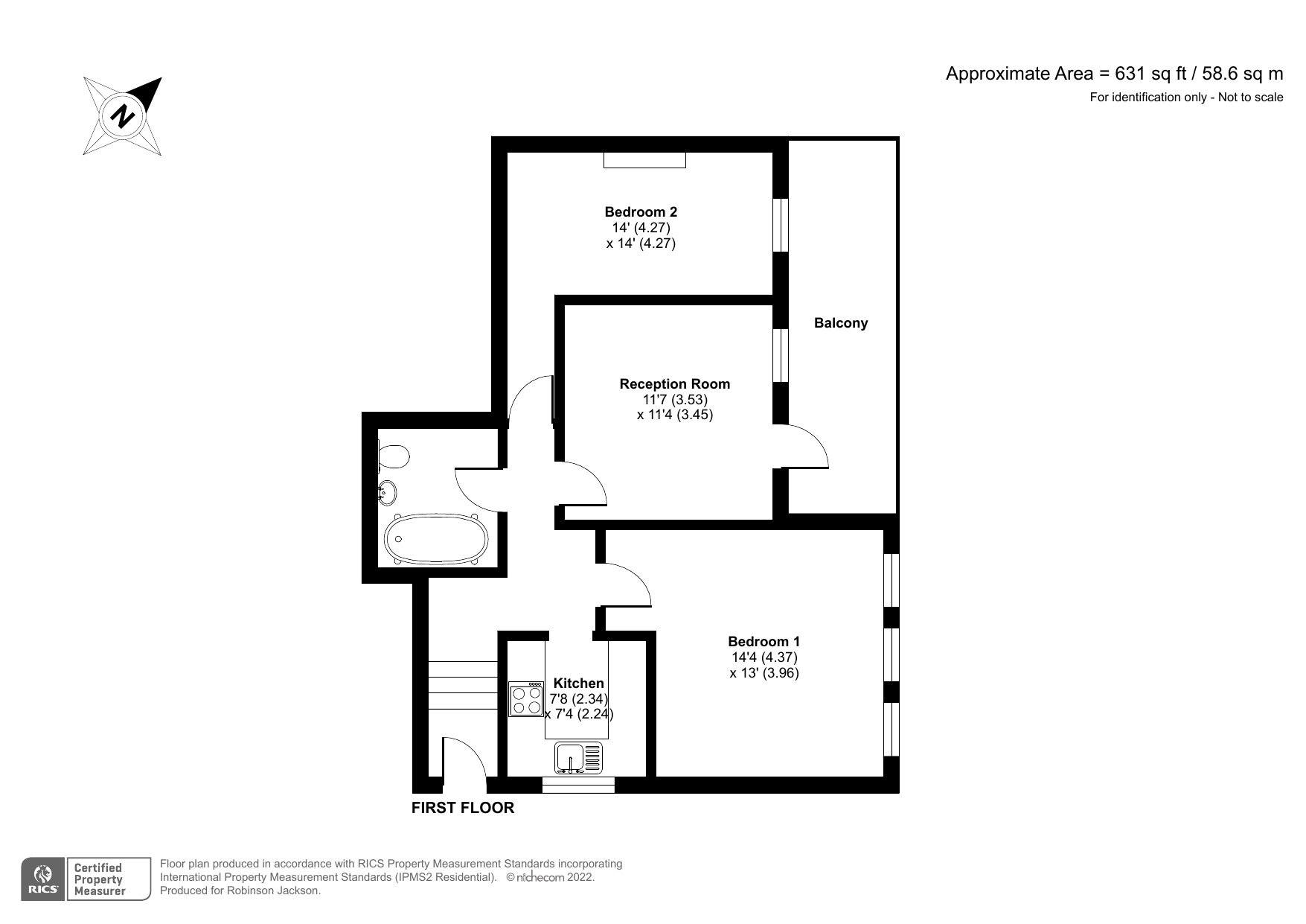
Property Description
A beautifully presented first-floor split-level period conversion maisonette, offering two spacious double bedrooms, a private balcony, and a share of freehold. Ideally located in the prestigious and highly sought-after Thorpe Conservation Area, this charming home blends period character with modern comfort. Just a short walk to Sydenham station, it provides excellent transport links into Central London, while being moments from the open green spaces of Mayow Park — perfect for leisure and relaxation.
- Two Double Bedrooms
- Period Conversion Maisonette
- Share of Freehold
- First Floor
- Chain Free
- Split Level
- Double Glazing
- Balcony
- Contemporary Designed
- Situated in the prestigious Thorpe Conservation area
- Excellently located for Sydenham Station
- Conveniently located for High Street and the award winning Mayow Park
Rooms
Entrance HallWood flooring, radiator
LoungeDouble glazed window to side, door to balcony, carpet, radiator
KitchenDouble glazed window to front, wood block work surface, stainless steel drainer and sink, integrated oven, hob, extractor, space for fridge freezer, plumbed for washing machine, tiled flooring radiator
Master BedroomDouble glazed window to side, carpet, radiator
Bedroom TwoDouble glazed window to side, carpet, radiator
Bathroompanelled bath, mixer tap and shower attachment, wash hand basin, in vanity unit, low flush WC, tiled flooring, heated towel rail, extractor fan
