Property Description
*** Guide Price £400,000-£425,000 ***
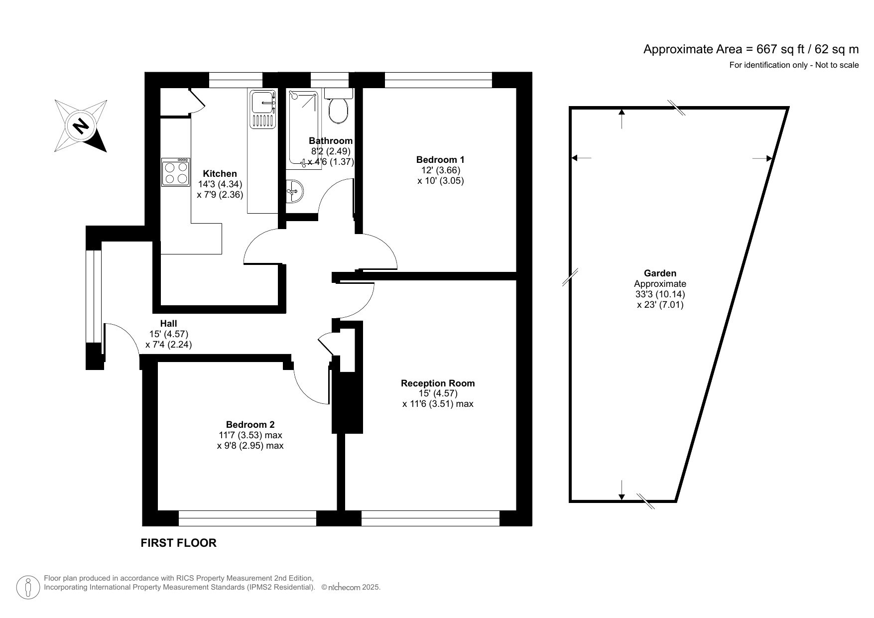
Spacious first floor purpose built maisonette located in a quiet cul de sac.
Benefitting from two double bedrooms, 15' lounge, private rear garden, long lease and being sold with no onward chain.
Within a stone’s throw of Sydenham station and high street and within walking distance of Crystal Palace Park and the award winning Mayow Park.
- First floor purpose built maisonette
- Total floor area 55sqm
- Two double bedrooms
- Private rear garden
- No chain
- Longe lease
- Quiet Cul de sac location
- A stone’s throw away from Sydenham high street and station
- Within walking distance of Crystal Palace Park and the award winning Mayow Park
Rooms
Entrance HallPart opaque double glazed entrance door, double glazed window to side, wall mounted electric heater, storage heater, herringbone parquet flooring, access to loft.
LoungeDouble glazed window to front, wall mounted electric heater, coal effect electric fire with wooden surround, herringbone parquet flooring, dado rail, coved ceiling.
KitchenDouble glazed window to rear, range of fitted white wall and base units with work surface over, one bowl white sink unit with mixer tap, space for electric cooker, pluming for washing machine, breakfast bar, vinyl flooring, textured ceiling.
Bedroom OneDouble glazed window to rear, wall mounted electric heater, carpet, textured ceiling.
Bedroom TwoDouble glazed window to front, wall mounted electric heater, carpet, textured ceiling.
BathroomOpaque double glazed window to rear, three piece bathroom suite comprising of: wooden panelled bath with mixer tap and shower attachment, pedestal wash hand basin and low level wc, vinyl flooring, tiled walls, extractor fan, textured ceiling.
Rear Gardenmainly laid to lawn, side access.
