Property Description
*** Guide Price £375,000-£400,000 ***
Immaculately presented split level flat set within a quiet, tree lined road in Forest Hill.
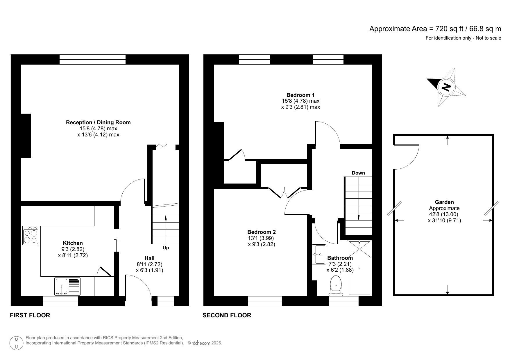
Benefitting from two double bedrooms, private rear garden, modern kitchen and bathroom, ample storage and total floor area of 65sqm.
Well located for Forest Hill station and high street and within a short walk of the award winning Mayow Park.
- First floor
- Split level
- Two double bedrooms
- Total floor area 65sqm
- 15' Lounge
- Modern kitchen and bathroom
- Ample storage
- Private rear garden
- Within walking distance of the award winning Mayow Park
- Well located for Forest Hill station and high street
Rooms
Communal EntranceCommunal entrance door, stairs to first floor.
Entrance HallPart opaque double glazed entrance door, radiator, wooden flooring, spotlights.
LoungeDouble glazed window to rear, radiator, gas fire, understairs storage cupboard, carpet.
KitchenDouble glazed window to front, range of fitted base units with wood work surface over, one bowl stainless steel sink unit with mixer tap, oven and gas hob to remain, integrated fridge and freezer, plumbing for washing machine and slimline dishwasher, cupboard housing wall mounted boiler, vinyl flooring, extractor fan.
LandingCarpet. spotlights.
Bedroom OneTwo double glazed windows to rear, radiator, built in storage cupboard.
Bedroom TwoDouble glazed window to front, radiator, built in wardrobe, carpet.
BathroomDouble glazed window to front, three piece bathroom suite comprising of: panelled bath with separate taps and mixer shower over, pedestal wash hand basin with separate taps and low level wc, vinyl flooring, part tiled walls.
Rear GardenMainly laid to lawn, gravelled area, shed.
