Property Description
Guide price £485,000 - £500,000
Bond Close, Welling
**Open day by appointment only Saturday 7th March**
A modern three-bedroom end of terrace townhouse set within a quiet and popular development of family homes constructed in 2016.
The property has been exceptionally well maintained by the current owners and is presented in excellent condition throughout, effectively as new.
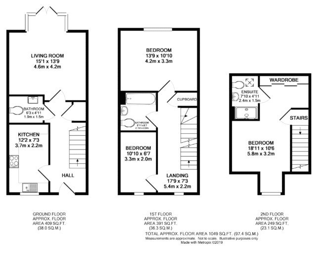
The accommodation briefly comprises a welcoming reception room with access to a private rear garden, a contemporary fitted kitchen, and a downstairs W/C. To the first floor are two well-proportioned bedrooms and family bathroom. The to floor has a master bedroom with en-suite shower room.
Bond Close is ideally positioned within this peaceful residential development and is perfectly suited for a growing family. Welling train station is within a short walk, providing convenient access for commuters. The area also benefits from excellent primary and secondary school catchments, while Welling High Street offers a variety of shops, cafés and local amenities close by.
- Modern three bedroom town house
- Off street parking
- En suite to master bedroom
- Ground floor W/C
- Popular development
- Low maintenance rear garden
- Service charge in place
Rooms
Entrance Hall:Double glazed door to front and wood style laminate flooring.
Lounge: 4.6m x 4.2mWood style laminate flooring and double glazed French doors to rear.
Kitchen: 3.7m x 2.2mFitted with a range of wall and base units with contrasting work surfaces. Integrated double oven, hob and filter hood. Integrated dishwasher, washing machine and fridge freezer. Localised tiled walls, tiled flooring and double glazed window to front.
Ground Floor WC:Fitted with a two piece suite comprising of pedestal wash hand basin, low level wc and wood style laminate flooring.
Landing:Carpet as fitted. Stairs to bedroom and en suite.
Bedroom 2: 4.2m x 3.3mDouble glazed window to rear and carpet as fitted.
Bedroom 3: 3.3m x 2mDouble glazed window to front and carpet as fitted.
Bathroom:Fitted with a three piece suite comprising of pedestal wash hand basin, low level wc and panelled bath. Tiled flooring.
Stairs to Bedroom 1 Bedroom 1: 5.77m x 3.2mDouble glazed window to front built in wardrobe and carpet as fitted.
En Suite:Fitted with a three piece suite comprising of wall mounted wash hand basin, low level wc and separate walk in shower cubicle. Part tiled walls, tiled flooring and velux window.
Garden:Mainly laid to lawn with patio. Gate to side. Shed.
Parking:Two allocated parking spaces to front.
