Property Description
Guide Price £850,000
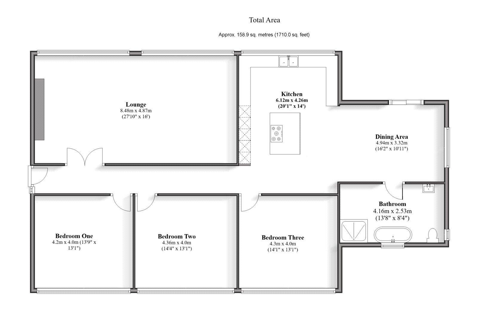
Located in the sought after Village of Eynsford a 5 minute drive from the station which offers fast services to London City is this impeccably presented detached converted barn. Offering over 1,700 sq/ft of living space with 3 double bedrooms, luxuriously appointed bathroom, kitchen with open dining area and an amazing 8.48m x 4.87m lounge with picture windows providing unobstructed views of the countryside. Outside is a wonderful rear garden with meadow style lawn, private gated drive with space for multiple vehicles as well as a sizeable patio. If you are looking for space, fresh air and still need to access the city, look no further.
- Detached Bungalow
- 3 Double Bedrooms
- 8.48m x 4.87m Lounge
- Open Plan Kitchen and Dining Room
- Expansive Views of the Countryside
- Gated Driveway
Rooms
Entrance HallProviding Access to all rooms. Radiator.
Lounge 8.48m x 4.87mDouble glazed picture window providing expansive views of the countryside. Feature fireplace with media in mind. Radiators.
Kitchen 6.12m x 4.26mDouble glazed picture window with views of the countryside. Range of matching wall and base cabinets with countertop over with inset sink/drainer and separately an induction hob. Integrated oven, dishwasher, and washing machine. Space for 'American fridge/freezer. Radiator. Open to dining area.
Dining Area 4.94m x 3.32mDouble glazed window to side and French doors to garden. Radiator. Open to kitchen area.
Bedroom One 4.2m x 4.0mDouble glazed window to rear. Radiator.
Bedroom Two 4.36m x 4.0mDouble glazed window to rear. Radiator.
Bedroom Three 4.3m x 4.0mDouble glazed window to rear. Radiator.
Bathroom 4.16m x 2.53mOpaque double glazed window to rear. Walk in shower. Freestanding bath. Vanity wash basin. Low level wc. Heated towel rail.
