Property Description
Guide Price £1,250,000
Located in the sought after village of Eynsford with an elevated position providing expansive views of the local countryside is this impressive family home. Having been built form the ground up in 2012, the property boasts all the benefits of modern life whilst capturing a period charm. Accommodation is provided across one floor being a detached bungalow and comprises 4 large double bedrooms, 2 boasting ensuite shower rooms, a luxurious family bathroom, wonderful kitchen/dining room with large picture window with views of the countryside beyond, a great sized family room again offering further views of the scenery and a fully glazed conservatory, all with under floor heating. Outside you will find over 2 and a half acres of garden/paddock and more gated off street parking than you could wish for. If you are looking for a semi rural retreat with convenient access to London (via Eynsford station) Look no further.
- 4 Double Bedrooms
- 3 Bathrooms (2 x Ensuite)
- 7.93m x 5.69m Lounge with Countryside Views
- 7.51m x 5.68m Kitchen/Dining Room with Views
- Under Floor Heating Throughout
- 2,433sq/ft of Living Space
- 2.79 acres Approx Garden/Paddock
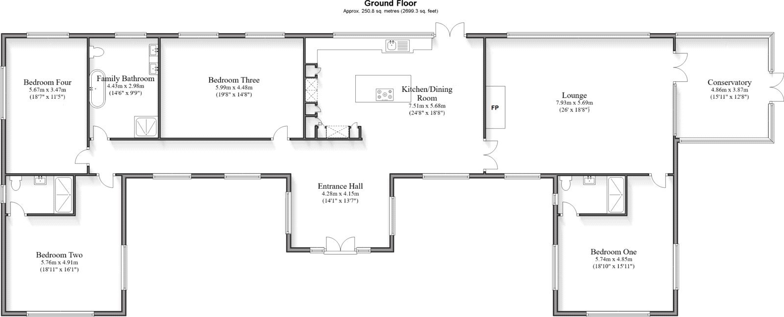
Rooms
Entrance Hall 4.28m x 4.15mDouble glazed windows to sides. Oak glazed double doors to front. Provides access to lounge, kitchen/dining room, family bathroom and bedrooms.
Lounge 7.93m x 5.69mDouble glazed picture window to rear providing expansive views of the surrounding countryside and window to front. Feature fireplace with wood burning stove inset. Underfloor heating. Double glazed French doors to conservatory.
Conservatory 4.86m x 3.87mDouble glazed all round with French doors to side. Under floor heating.
Kitchen/Dining Room 7.51m x 5.68mmax Double glazed picture window providing uninterrupted views of the countryside and French doors to garden/paddock. Boasting a range of matching wall and base and island cabinets with granite countertops over with inset sink/drainer and hob. Integrated ovens. Space for fridge/freezer, washing machine.
Bedroom One 5.74m x 4.85mDouble glazed windows to front and side. Under floor heating. Access to ensuite shower room.
Ensuite Shower Room One 2.47m x 1.47mOpaque double glazed window to side,. Walk-in wet floor shower. Vanity wash basin. Low level wc,
Bedroom Two 5.76m x 4.91mDouble glazed windows to front and side. Under floor heating. Access to private ensuite shower room.
Ensuite Shower Room Two 2.78m x 1.48mOpaque double glazed window to side. Walk-in wet floor shower. Vanity wash basin. Low level wc.
Bedroom Three 5.99m x 4.48mDouble glazed windows to rear with views of the countryside. Under floor heating.
Bedroom Four 5.67m x 3.47mDouble glazed windows to rear and side. Under floor heating.
Family Bathroom 4.43m x 2.98mOpaque double glazed window to rear. Walk-in wet floor shower. Freestanding bath. Vanity his 'n' hers wash basins. Low level wc. Heated towel rail.
