Property Description
Guide Price £400,000 - £425,000
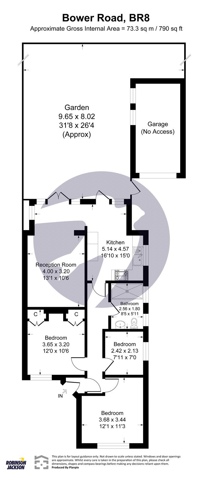
Located in the sought after village of Hextable is this chain free 3 bedroom semidetached bungalow. With accommodation comprising the aforementioned 3 bedrooms, shower room, and open plan kitchen, living dining room. Outside is a West facing rear garden, shared and private drives as well as a private garage. If you are looking for a home that is ready to go, with potential to grow with you, looking no further.
- Semi Detached Bungalow
- 3 Bedrooms
- Modern Shower Room
- Reception Room
- Modern Kitchen
- Garage
- Village Location
- No Forward Chain
Rooms
Porch Entrance Hall Reception Room 4m x 3.2mKitchen 5.13m x 4.57mat widest
Bedroom 3.68m x 3.43mBedroom 3.66m x 3.2mBedroom 2.41m x 2.13mShower Room 2.57m x 1.8m
