Property Description
Guide Price £400,000-£425,000
Situated in a quiet cul-de-sac, this attractive three-bedroom chalet bungalow offers fantastic potential and is presented to the market with no forward chain.
The property benefits from a driveway and garage, providing convenient off-road parking, along with side access for added practicality.
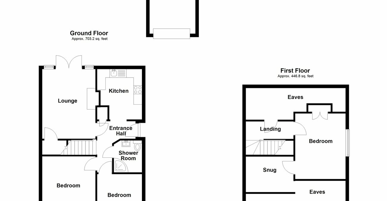
Inside, the home offers a flexible layout that can be adapted to suit a variety of needs — ideal for families, downsizers, or those wishing to put their own stamp on a property. The third bedroom is currently being used as a dining room, adding to the home’s versatility. The spacious accommodation provides a comfortable and adaptable living environment, with the overall square footage to be confirmed.
Located in a popular and well-connected area of ME2, the property is close to local amenities, reputable schools, and excellent transport links, ensuring both comfort and convenience for its next owners.
Early viewing is highly recommended, as properties in this sought-after location rarely remain available for long.
- No forward chain
- Square footage TBC
- Driveway & Garage
- Cul de sac
- Chalet Bungalow
- Side access
Rooms
Lounge 4.75m x 3.12mCarpet, double glazed window & door, storage cupboard.
Dining Room 3.18m x 2.64mCarpet, double glazed window to front, radiator.
Kitchen 2.62m x 3.1mTiled flooring, wall to base units with roll top work surface over, oven , hob with extractor fan, double glazed window to rear, tiled walls.
Bedroom One 2.95m x 3.86mCarpet, double glazed window to rear, built in wardrobes.
Bedroom Two 3.86m x 2.8mCarpet, radiator x two, cupboards(eaves).
Bathroom 1.88m x 1.88mTiled flooring, shower cubicle, basin with mixer tap, low level w/c, fully tiled walls.
Rear gardenSide access.
GaragePower supply.
