Property Description
Originally built as a two-bedroom bungalow, this deceptively spacious property has been thoughtfully extended and reconfigured to create a superb three-bedroom family home.
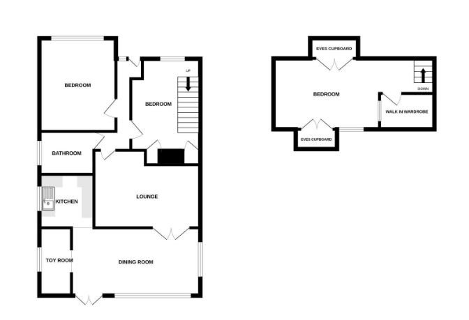
The accommodation offers a well-balanced layout, with two bedrooms located on the ground floor alongside a modern family bathroom. To the rear of the property, the living space opens up to provide a comfortable lounge leading through to a generous dining room, ideal for both everyday living and entertaining. The kitchen is positioned just off the dining room, creating a practical and sociable arrangement, with an additional versatile room that can be used as a playroom, home office or snug.
The first floor has been cleverly converted to provide a spacious third bedroom, complete with a walk-in wardrobe/dressing area and useful eaves storage, making it an ideal principal bedroom or private guest suite.
Externally, the property benefits from off-road parking to the front. The rear garden is arranged over two tiers, offering separate areas for relaxing and outdoor dining. To the rear, there is also a garage and additional parking, adding to the overall convenience of this fantastic home.
This is an excellent opportunity to acquire a versatile and well-presented property, perfectly suited to modern family living.
- 3 Bedrooms
- Driveway + garage
- Extended in the loft and to the rear
- Popular location
- Ideal family home
- Must be viewed
Rooms
Front Door to: Entrance Hall: Bedroom 1: 3.33m x 3.18mBedroom 2: 3.23m x 2.97mBathroom: 1.73m x 1.73mLounge: 4.37m x 3.45mDining Room: 5m x 3mKitchen: 2.97m x 2.62mStudy: 2.97m x 1.57mLoft Room: 3.53m x 3.02mWalk in wardrobe
