Property Description
Guide Price £450,000 - £475,000
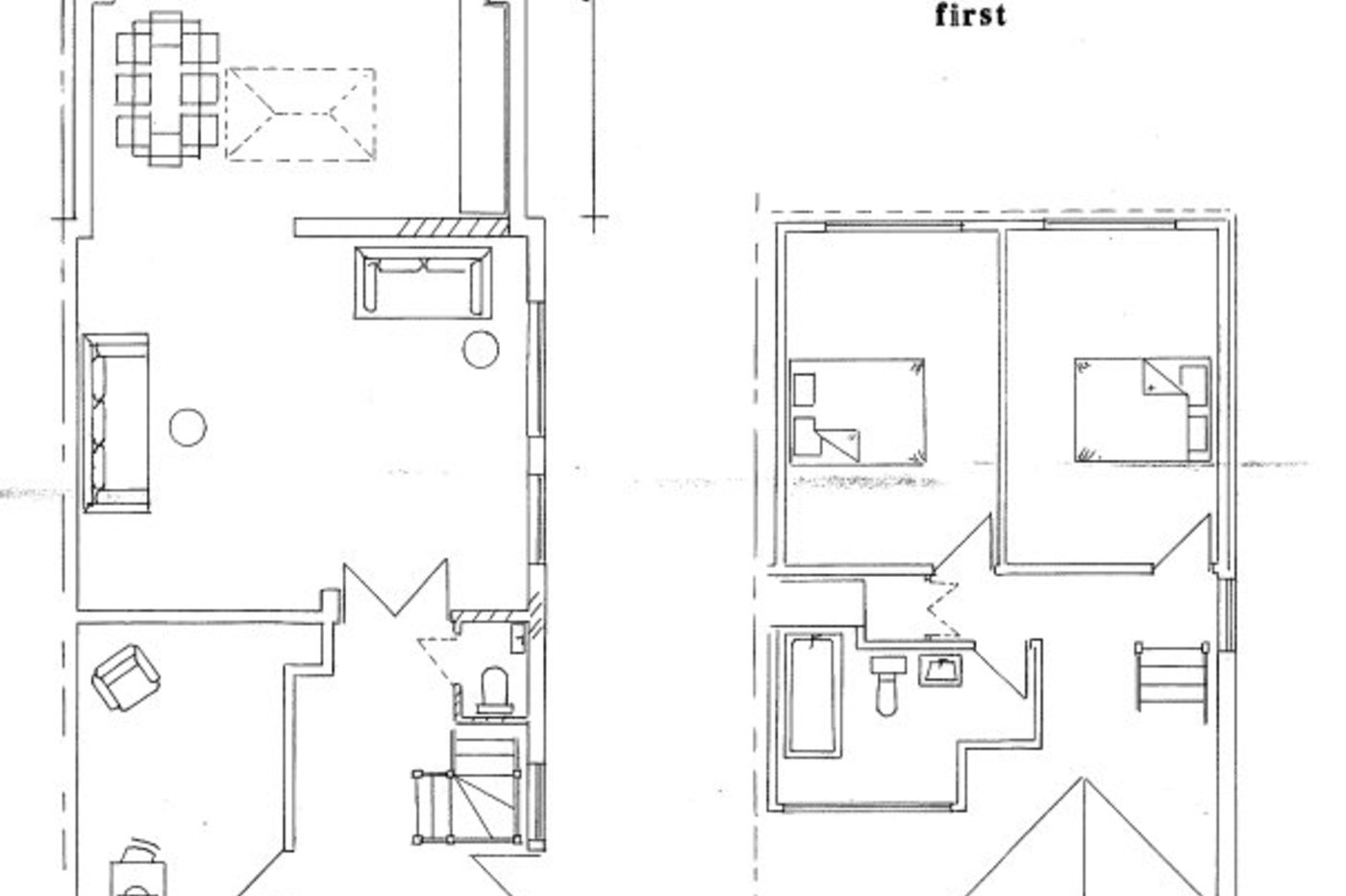
Located in the sought after village of Crockenhill is this impressive family home. Having applied for and been granted planning permission in 2018 (now lapsed) to demolish current conservatory and replace with single storey extension and loft conversion with rear dormer and gable side roof conversion to create a luxurious home. Currently in need of a refresh, providing versatile living space with the current layout offering; 2 bedrooms, study area, large reception room, kitchen and well appointed shower room, whilst the first floor offers 2 bedrooms. Outside is a Southern aspect rear garden extending some 110 feet. Off street parking and garage.
Available Chain Free, internal viewing essential to appreciate the scale and potential this home offers.
- Guide Price £450,000 - £475,000
- 4 Bedrooms
- 2 Reception Rooms
- Conservatory
- Amazing Shower Room
- Garage/Outbuilding
- Off Street Parking
- Over 100' Garden
- Chain Free
Rooms
HallwayOffering access to all ground floor rooms.
Kitchen 5.97m x 2.57mDouble glazed window to side and door to rear. Wall and base cabinets with countertop over with inset sink/drainer and gas hob. Integrated oven. Space for washing machine and fridge/freezer.
Reception Room 8.15m x 3.84mDouble glazed patio doors to conservatory. Radiators.
Conservatory 3.35m x 2.26mDouble glazed windows all round with sliding patio door. to garden. Access from reception room.
Shower RoomOpaque double glazed window to side. Walk in shower. Vanity wash basin. Low level wc. Heated towel rail.
Bedroom One 3.61m x 2.82mDouble glazed window to front. Radiator.
Bedroom Four 3.63m x 3.1mDouble glazed window with tertiary glazing to rear. Radiator Wardrobe. Eaves storage.
Reception Room Two 3.63m x 2.74mDouble glazed window to front. Radiator. Stairs to first floor.
First Floor LandingAccess to bedrooms. Storage cupboard with eaves storage access.
Bedroom Two 3.94m x3.63mDouble glazed window to rear. Radiator. Storage cupboard.
Bedroom Three 3.3m x 2.41mDouble glazed window to front. Radiator.
