Property Description
Set in a highly sought-after and convenient location, this three-bedroom semi-detached chalet bungalow offers the perfect blend of space, practicality, and potential. Situated close to local amenities, reputable schools, and excellent transport links, this home is ideal for families, commuters, or anyone looking for comfortable living in a well-connected area.
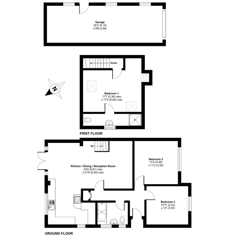
The property features an open-plan kitchen, dining, and living area, designed for modern living and entertaining. There are three well-proportioned bedrooms, including a principal bedroom with an en-suite, as well as a family bathroom.
Externally, the home benefits from a large garage, a spacious driveway providing ample parking, and a rear garden
- Three bed semi-detached chalet bungalow
- Garage
- Driveway
- Rear garden
- En-suite
- Close to local amenities
- Close to local transport links
