Property Description
** GUIDE PRICE £850,000 - £875,000 ** A charming and deceptively spacious four double bedroom semi-detached bungalow, beautifully positioned on an impressive plot of approximately 0.6 acres and enjoying private access to protected woodlands. Set back from the road and surrounded by mature greenery, the property offers a rare combination of privacy, generous living space, and picturesque views across the surrounding countryside.
The accommodation is thoughtfully arranged and well proportioned throughout. At the heart of the home is a spacious reception room featuring a striking focal fireplace, creating a warm and inviting space ideal for both everyday living and entertaining. The well-appointed shaker-style kitchen is fitted with a range of integrated appliances and offers ample storage and preparation space, making it both practical and stylish. Adjacent to the kitchen is a bright dining room/orangery which enjoys an abundance of natural light and provides a wonderful setting for family meals while overlooking the gardens.
The property offers four generously sized double bedrooms, providing flexible accommodation suitable for families, guests, or home working. The principal bedroom benefits from fitted wardrobes and a private en-suite shower room, while the remaining bedrooms are served by a well-presented family bathroom.
Externally, the home continues to impress. A gated driveway provides secure parking for multiple vehicles and leads to an integral garage. The beautifully maintained wrap-around gardens extend across the substantial plot and feature expansive lawns, mature planting, and a variety of seating areas from which to enjoy the peaceful setting. A detached summer house sits within the grounds and enjoys elevated, panoramic views over the surrounding landscape, offering an ideal retreat for relaxation, entertaining, or creative use as a studio or home office.
Further noteworthy features include oil-fired central heating, useful loft space offering additional storage, and significant scope for further extension or development subject to the necessary planning permissions. With its generous plot, woodland access, and versatile accommodation, this delightful home presents a rare opportunity to acquire a property that blends countryside tranquillity with comfortable modern living.
- Oil fired heating
- Kitchen/Conservatory
- Garage & Gated Driveway
- Stunnning Countryside Views
- Pleasant Rural Location
- En-Suite Shower Room
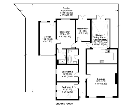
Rooms
Entrance Hall:Spacious hallway with radiator.
Lounge: 5.56m x 5.33mWith feature exposed brick fireplace. Two double glazed windows to front. Radiator.
Kitchen/Dining Room/Conservatory 7.62m x 5.33mFitted with a stunning kitchen comprising a range of fitted wall, base and display units with built in appliances. Sink unit with drainer. Attractive tiled walls and flooring. Rangemaster cooker. Extractor. Open access into the conservatory/Dining Room.
Bedroom 1: 4.98m x 3.15mDouble glazed window to rear, radiator and fitted wardrobes. Hidden door behind the mirror leading to garage. Access to:-
En-Suite:A stunning suite comprising walk in shower cubicle, wash hand basin and wc set in vanity unit. Attractive tiled walls and flooring.
Bedroom 2: 3.66m x 2.95mDouble glazed window to side and radiator.
Bedroom 3: 3.66m x 2.9mTwo double glazed windows to side and skylight. Radiator.
Bedroom 4: 3.66m x 2.5mDouble glazed French doors opening onto rear garden patio. Radiator.
Bathroom:Fitted with a three piece suite comprising roll top bath with shower, pedestal wash hand basin and wc with concealed cistern. Tiled flooring.
