Property Description
River Cray House is a boutique collection of brand new one and two bedroom apartments. The apartments are located in the heart of Crayford Town Centre just a short walk from Crayford station (Zone 6).
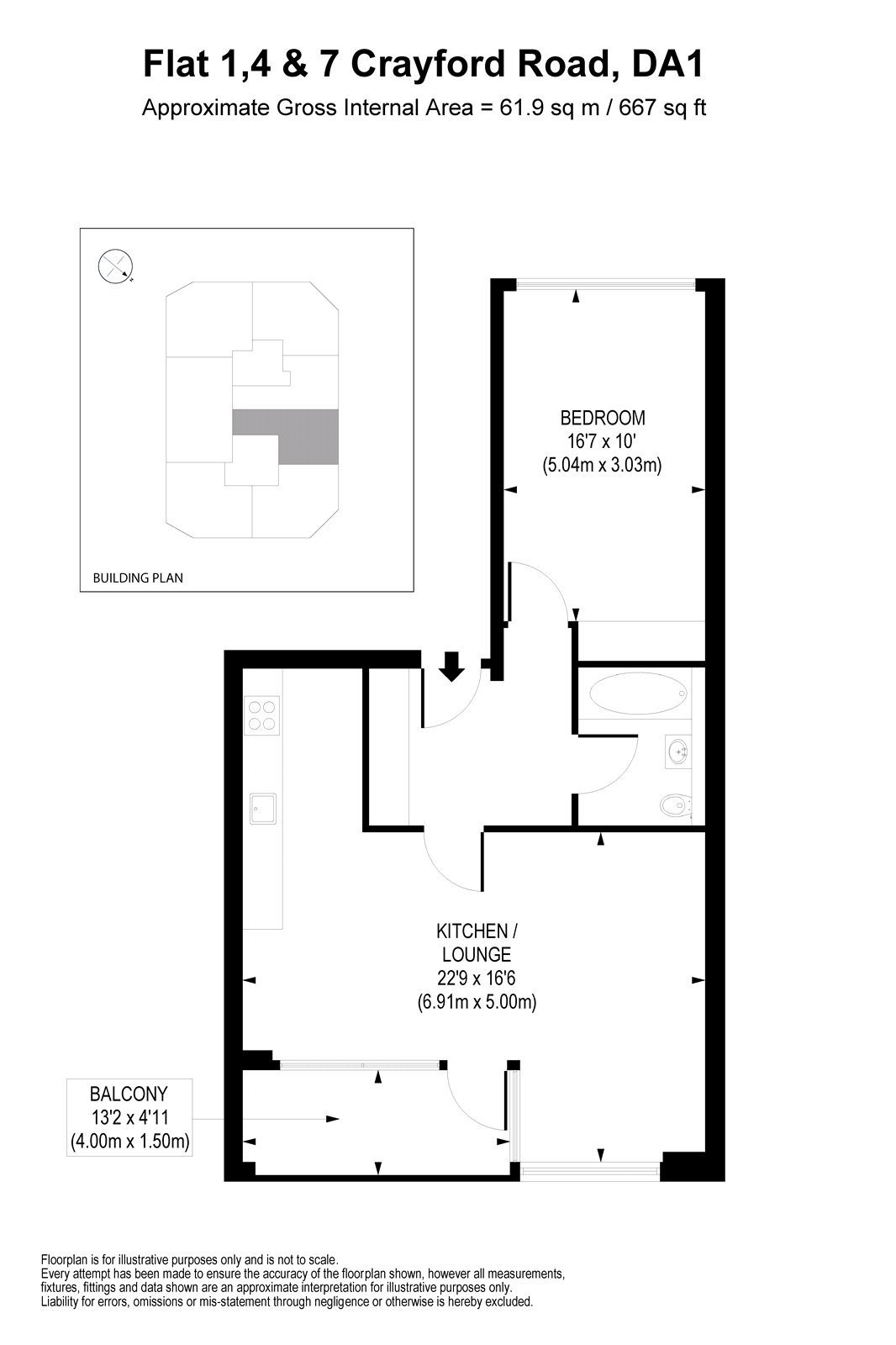
This beautifully finished property offers contemporary living throughout and comprises a spacious open-plan kitchen and dining area, complete with high-quality Bosch integrated appliances and ample space for both entertaining and everyday living. The apartment further benefits from a very generous double bedroom, a stylish modern three-piece bathroom suite, and a large private balcony providing excellent outdoor space.
Perfectly positioned in the centre of Crayford, a wide selection of local shops, restaurants, bars, and the train station are all situated right on your doorstep, offering superb convenience and excellent transport links.
Offered unfurnished and available immediately, this exceptional apartment is ideal for tenants seeking modern living in a vibrant and well-connected location.
Please note the furniture in the internal imagery is generated via AI.
Council Tax Band: TBC
Deposit Required: £1,903
Affordability Required: £49,500
- Crayford Town Centre Location
- 999 Year Leases
- £0 Ground Rent
- Ready To Move In
- Balconies With All Apartments
- 60% Reserved
- Lift Access To All Levels
- A Development Of 18 Privately Owned Residential Apartments
Rooms
It's all in the detail.....The well-appointed homes at River Cray house include an all-inclusive specification enabling you to start enjoying your home from the moment you move in. Benefits include high end Bosch appliances, efficient heating systems, Hans Grohe sanitaryware in the bathrooms and en-suites, double glazed windows and award winning Nolte kitchens. Buying a new home is a big investment and every home at River Cray House comes with a 10 year AHCI Advantage Structural Defects Insurance warranty.
Entrance Hall:Entrance door. Spotlights. Fuse box. Wood effect flooring. Hive heating control. Video phone entry system.
Living Room:Double glazed door and window unit leading to a West facing balcony. Double glazed window to side with views to the river cray. Two pendant lights. Spotlights. Radiator wood effect flooring.
Kitchen:Matching range of wall and base units. Cupboard housing combi boiler. Built in Bosch microwave and electric oven. Built in Bosch fridge freezer. Built in Bosch dishwasher. Built in Bosch washer drier. Built in Bosch 4 ring electric hob. Stainless steel Bosch cooker hood over. Stainless steel sink unit. Complimentary worktops and splash backs .
Bedroom:Large double glazed window to side. Radiator. Pendant light. Spotlights. Carpet.
Bathroom:Spotlights. Extractor. Low level WC with stainless steel wall mounted flusher. Vanity wash hand basin. Panel bath with senate shower over. Stainless steel heated towel rail. Porcelanosa wall and floor tiles with built in shelf.
