Property Description
River Cray House is a boutique collection of brand new one and two bedroom apartments. The apartments are located in the heart of Crayford Town Centre just a short walk from Crayford station (Zone 6).
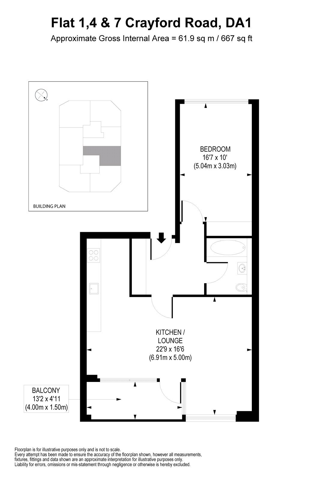
This beautifully finished property offers contemporary living throughout and comprises a spacious open-plan kitchen and dining area, complete with high-quality Bosch integrated appliances and ample space for both entertaining and everyday living. The apartment further benefits from a very generous double bedroom, a stylish modern three-piece bathroom suite, and a large private balcony providing excellent outdoor space.
Perfectly positioned in the centre of Crayford, a wide selection of local shops, restaurants, bars, and the train station are all situated right on your doorstep, offering superb convenience and excellent transport links.
Offered unfurnished and available immediately, this exceptional apartment is ideal for tenants seeking modern living in a vibrant and well-connected location.
Please note the furniture in the internal imagery is generated via AI.
Council Tax Band: TBC
Deposit Required: £1,903
Affordability Required: £49,500
- Crayford Town Centre Location
- 999 Year Leases
- £0 Ground Rent
- Ready To Move In January 2025
- Balconies With All Apartments
- 30% Reserved Prior To Launch
- Lift Access To All Levels
- A Development Of 18 Privately Owned Residential Apartments
Rooms
It's all in the detail.The well-appointed homes at River Cray house include an all-inclusive specification enabling you to start enjoying your home from the moment you move in. Benefits include high end Bosch appliances, efficient heating systems, Hans Grohe sanitaryware in the bathrooms and en-suites, double glazed windows and award winning Nolte kitchens. Buying a new home is a big investment and every home at River Cray House comes with a 10 year AHCI Advantage Structural Defects Insurance warranty.
Designer KitchensDesigner kitchens by the award winning Nolte Bosch stainless steel electric fan oven Bosch ceramic hob Bosch stainless steel microwave oven Bosch integrated fridge freezer Bosch washer dryer Bosch dishwasher Bosch stainless steel integrated cooker hood
General FinishesMatt white doors with polished chrome ironmongery matching door-linings, architraves and skirtings. Strip flooring to entrance hall, living area and kitchens. Carpets with underlay to bedrooms. Porcelanosa tiling in the bathrooms and en-suites. Television and telephone points in the living room and bedroom. Smoke alarm and CO2 detectors. Velfac double glazed windows and external doors. Gas central heating. Dry riser fire system in each core. Lift access to all floors.
Luxurious Bathrooms And En-suitesHans Grohe sanitary ware Porcelanosa wall and floor tiles Chrome heated towel rails White vanity wash hand basins White baths and shower trays
