Property Description
*CASH BUYERS* Wonderful seventh floor modern purpose built flat offered chain free with one double bedroom, long lease, double glazing, entry phone, in need of TLC offering fantastic potential set within a popular cul-de-sac location, excellently located for Crystal Palace Station, conveniently located for High Street and Crystal Palace Park
- One Double Bedroom
- Modern Purpose Built Flat
- Chain Free
- Leasehold
- Long Lease
- Seventh Floor
- Double Glazing
- Entry Phone
- In Need of TLC
- Fantastic Potential
- Excellently located for Crystal Palace Station
- Conveniently located for High Street and Crystal Palace Park
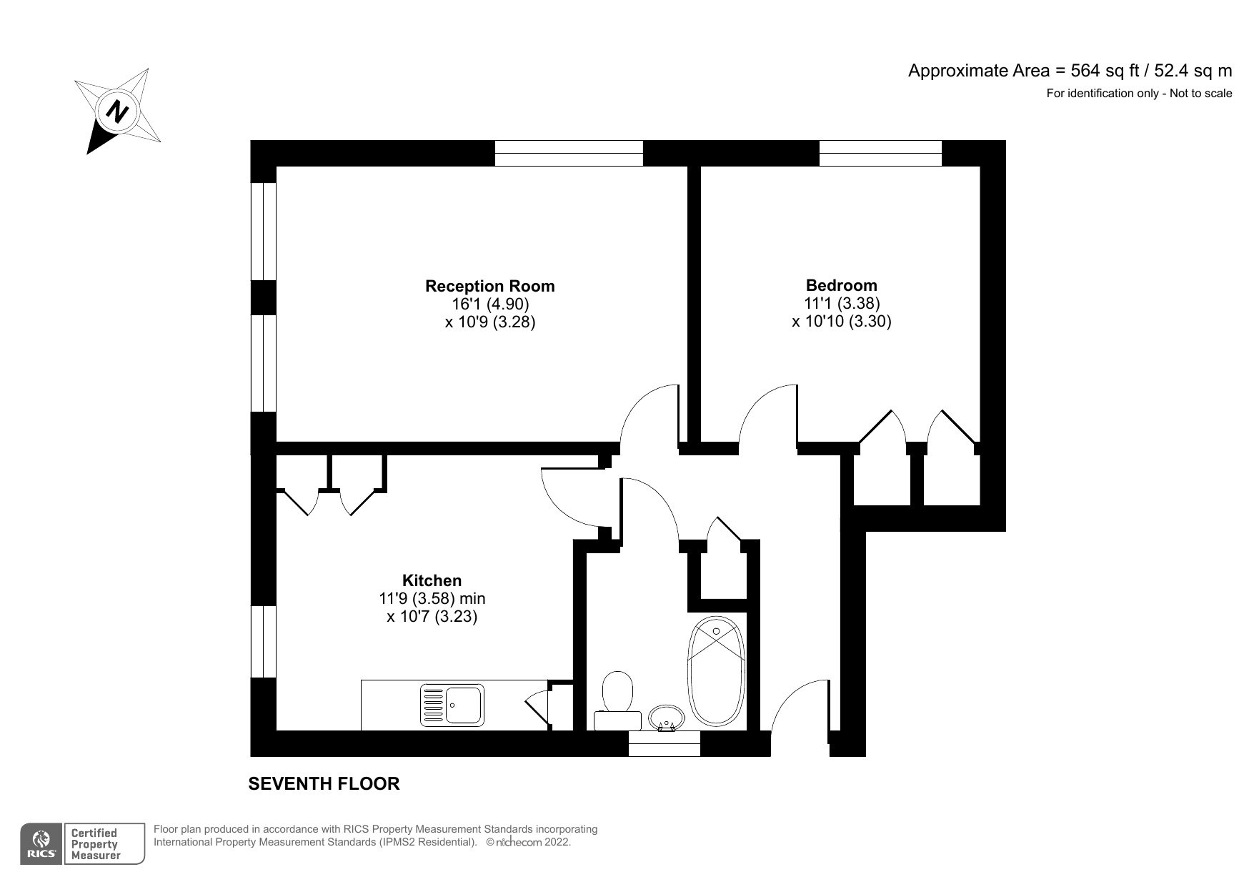
Rooms
Communal Entrance Entrance HallBuilt in cupboard, vinyl flooring
LoungeDouble glazed windows to rear, vinyl flooring, radiator
KitchenDouble glazed windows to rear, range of wall and base units, laminate work surface, stainless steel sink and drainer, space for fridge freezer, plumbed for washing machine, vinyl flooring
Master BedroomDouble glazed windows to front, built in wardrobes, vinyl flooring, radiator
BathroomDouble glazed windows to front, pannelled bath, low flush wc, tiled flooring
ExteriorCommnual garden, mainly laid to lawn
