Property Description
Guide Price £285,000 - £300,000
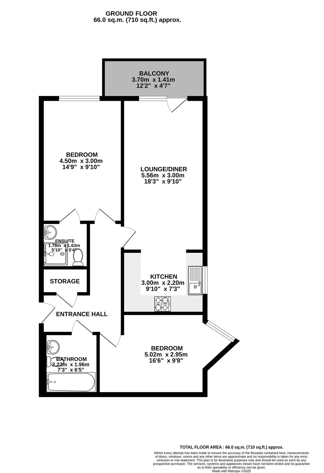
Located in the Downsview Development situated ideally for swift access to Swanley Station is this fantastic 2 bedroom, 2 bathroom first floor apartment. Providing an impressive 64m2 living space with lounge/diner open to a well equipped kitchen, 2 double bedrooms, the master boasting an ensuite shower room and a family bathroom. Outside is allocated and visitors parking as well as open spaces. Swanley station is a 5 minute walk away and offers fast services to London Bridge, Charing Cross, Victoria and Blackfriars. If you are looking for a bright, spacious home less than 30 minutes from London with all amenities close by, look no further.
- First Floor
- 2 Double Bedrooms
- 2 Bathrooms
- Open Plan
- Balcony
- Close to Station
Rooms
Entrance HallProvides access to all rooms. Storage cupboard. Radiator.
Lounge/Diner 5.56m x 3.0mDouble glazed window and door to balcony. Radiator. Open to kitchen.
Kitchen 3.0m x2.2mDouble glazed window to side. Range of matching wall and base cabinets with countertop over with inset sink/drainer and separately a gas hob. Integrated oven, space for washing machine, dishwasher and fridge/freezer. Open to lounge/diner.
Bedroom One 4.5m x 3.0mDouble glazed window to front. Radiator. Access to private ensuite shower room.
Ensuite Shower Room 1.78m x 1.63mEnclosed cubicle shower. Wash basin. Low level wc. Heated towel rail.
Bedroom Two 5.02m x 2.95mmax Double glazed window to side. Radiator.
Bathroom 2.22m x 1.96mEnclosed panelled bath with glass screen and shower over. Wash basin. Low level wc. Heated towel rail.
Balcony 3.7m x 1.41mAccessed via lounge/diner. Offering views over the development and the countryside beyond.
