Property Description
**GUIDE PRICE £160,000 - £180,000**
OFF ROAD PARKING!
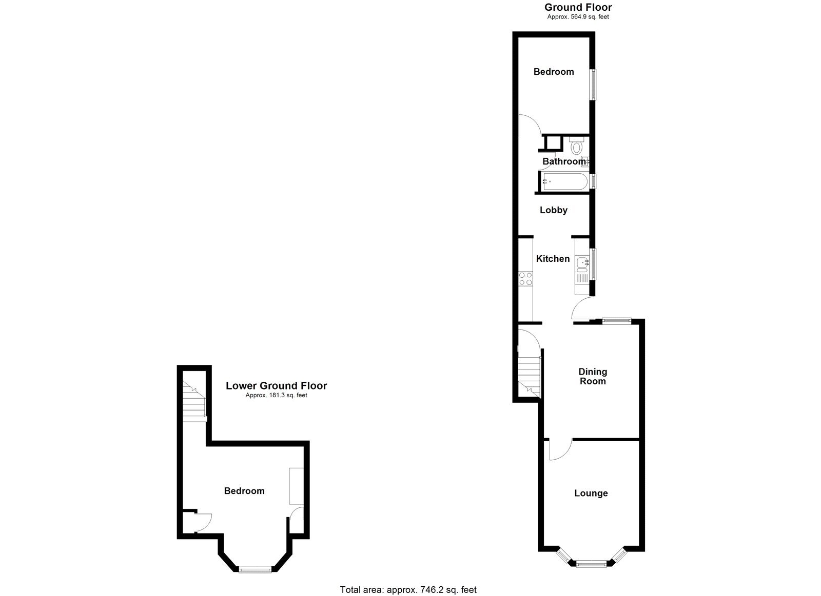
Offered to the market with no onward chain- this ground floor flat located on Edinburgh Road Chatham is well presented throughout, offering comfortable and convenient living close to a wide range of amenities and excellent transport links.
The property features a bright reception room, a modern bathroom, and tasteful decor throughout, creating a move-in-ready home ideal for first-time buyers, downsizers, or investors. A key advantage is the private rear parking area, providing space for approximately seven to eight vehicles — a rare find in this location.
Perfectly positioned for everyday convenience, the property benefits from easy access to Medway Maritime Hospital, located around 0.6 miles away, as well as excellent transport links including Chatham mainline railway station, approximately 1.1 miles distant, and Chatham Waterfront Bus Station, just a short walk from the property.
- Parking available for multiple vehicles.
- Nearby to local amenities
- No Chain
- Ground floor flat
- Low maintenance garden
