Property Description
*** Guide Price £300,000 - £325,000***
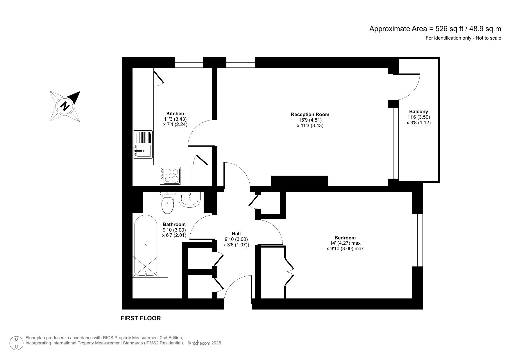
Rarely available a beautifully presented one-bedroom first-floor flat in the highly sought-after Eliot Bank development, right in the heart of Forest Hill.
This modern home enjoys stunning views towards the prestigious Horniman Museum and Gardens and has been thoughtfully updated throughout. The newly fitted kitchen features stylish, on-trend cabinetry, branded integrated appliances, LED counter lighting, and space for a dining table, perfect for entertaining or relaxed meals at home.
The refurbished bathroom offers a fresh, contemporary feel, and the property benefits from resident parking.
Just a short walk from Forest Hill Station, the flat is ideally located for commuters, while the nearby local shops, cafés, and green spaces provide everything you need for a balanced lifestyle.
Offered with a long lease, this home combines modern comfort with an enviable location, a fantastic opportunity not to be missed.
- One Double Bedroom
- Modern Purpose Built Flat
- Popular Cul-de-Sac Location
- Leasehold
- First Floor
- Communal Garden
- Balcony
- Ample Storage
- Video entry Phone
- Ideal for Forest Hill Station
Rooms
Communal EntranceCommunal entrance door, stairs and lift to first floor.
Entrance HallPart opaque double glazed entrance door, radiator, two storage cupboards, video Entryphone, laminate flooring.
LoungeFull height and full length double glazed windows to front, double glazed window to side, double glazed door to balcony, radiator, feature fireplace with tiled surround, laminate flooring.
KitchenDouble glazed window to side, radiator, range of fitted white wall and base units with wood effect work surface over, one bowl stainless steel sink unit with mixer tap, AEG oven, hob and extractor fan to remain, integrated washing machine, dishwasher and fridge/freezer, tiled splash back, laminate flooring.
BedroomDouble glazed window to front, radiator, built in wardrobe, laminate flooring.
BathroomHeated towel rail, three piece bathroom suite comprising of: panelled bath with mixer tap and shower over, fired earth tiles fitted around the wash hand basin with mixer tap and vanity unit under, enclosed low level wc, part tiled walls, laminate flooring, extractor fan.
Balcony Communal Garden
