Property Description
*** Guide Price £340,000-£360,000 ***
Immaculately presented light and airy ground floor period conversion flat located in a quiet cul de sac.
Benefitting from private rear garden, 13' master bedroom with en suite, bespoke kitchen with integrated appliances, ample storage, period features and long lease.
Within walking distance of Sydenham and Forest Hill stations and high streets. Well located for Wells Park and Sydenham Hill woods.
- Attractive period property
- Private rear garden
- Front garden
- Period features
- Bespoke kitchen with integrated appliances
- Long lease
- 13' Master bedroom with en suite
- Cul de sac location
- Within walking distance of Sydenham and Forest Hill stations and high streets
- Well located for Wells Park and Sydenham Hill woods
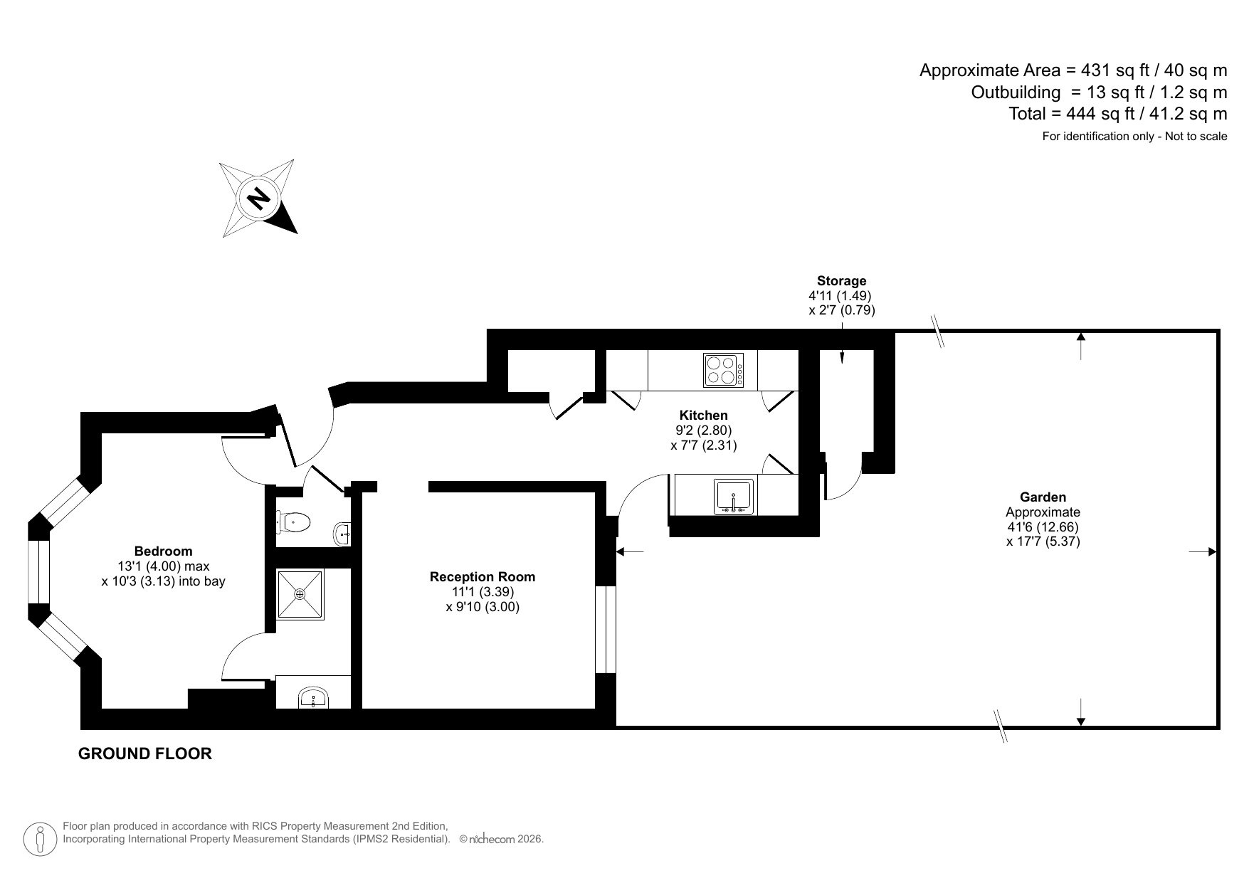
Rooms
Communal EntranceUPVC entrance door, carpet.
Entrance HallWooden entrance door, radiator, storage cupboard, woven vinyl flooring.
WcWall mounted wash hand basin with separate taps, low level wc, tiled flooring.
LoungeDouble glazed sash window overlooking garden, radiator, woven vinyl flooring, picture rail.
KitchenPart double glazed door to garden, double glazed sash window to side, range of fitted bespoke wall and base units with work surface over, one bowl stainless steel sink unit with mixer tap, integrated fridge/freezer and washing machine, cupboard housing wall mounted boiler, oven, gas hob and extractor fan to remain, cork flooring.
BedroomDouble glazed bay window to front, radiator, bespoke fitted wardrobe, door to en suite shower room, woven vinyl flooring, picture rail, coved ceiling.
En Suite Shower RoomHeated towel rail, walk in shower cubicle with mixer shower over and curtain, wall mounted wash hand basin with mixer tap, tiled flooring, tiled walls, extractor fan.
Rear GardenDecked area, mainly laid to lawn, path to rear, patio area at rear, outside water tap, outside storage cupboard, garden shed.
Front Garden
