Property Description
**Guide Price £200,000 to £225,000**
A spacious one bedroom first floor conversion flat, set in a former military academy. Conveniently located for Woolwich Dockyard, Woolwich Arsenal station and Elizabeth line.
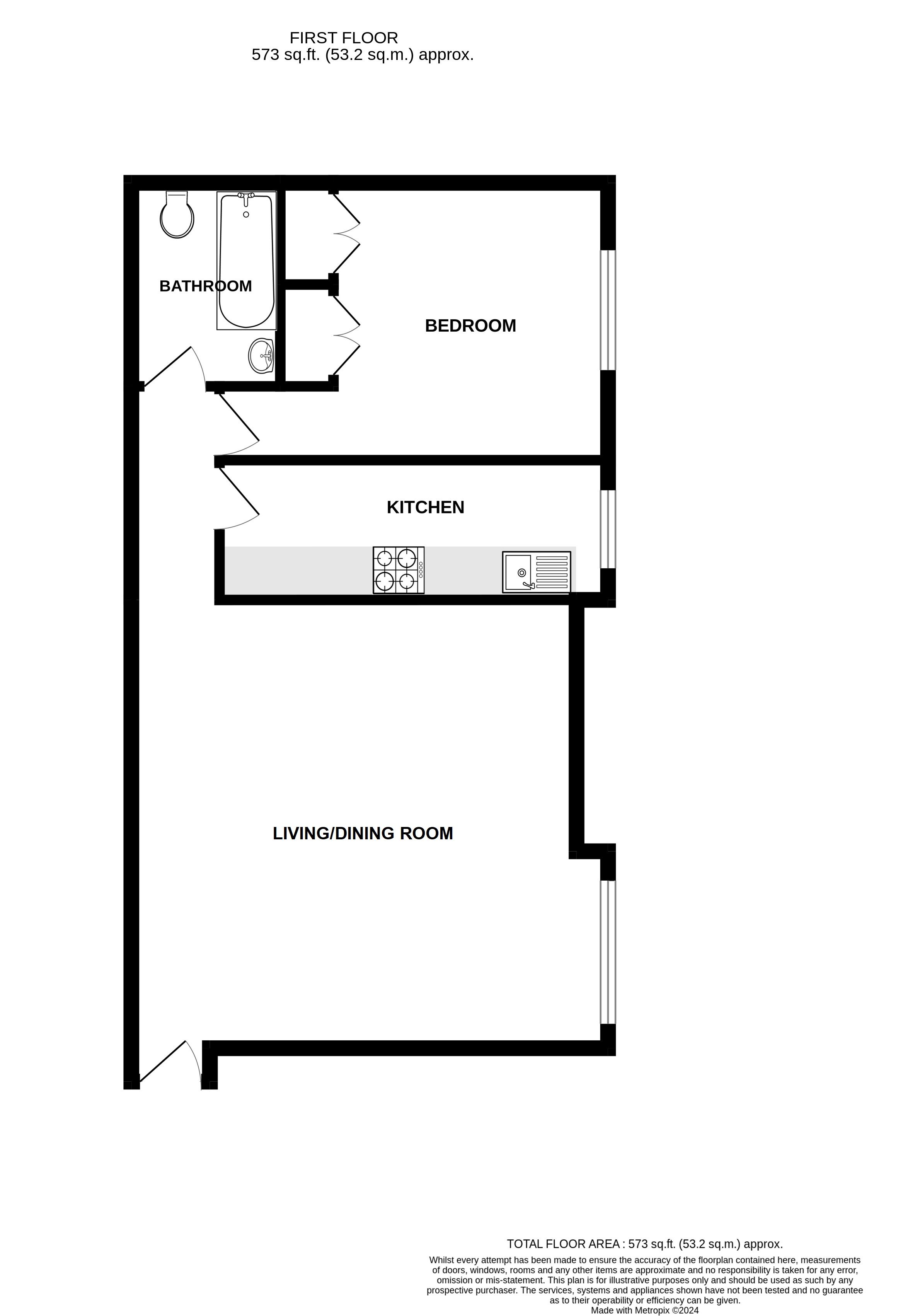
- Total Square Footage: Approximately 573 Sq ft
- 18' Living/Dining Room
- 14' Fitted Kitchen
- Communal Gardens
- Residents Parking
- No Chain
Rooms
Communal Entrance:Stairs to first floor.
Living/Dining Room: 5.5m x 3.78mCarpet as laid, sash window.
Kitchen: 4.27m x 1.6mFitted with a range of matching wall and base units with complementary work surfaces. Built in Electric oven and hob with filter hood. Vinyl flooring, sash window.
Bedroom: 3.15m x 3.12mCarpet as laid, built in wardrobe, sash window.
Bathroom:Fitted with a three piece suite comprising a panelled bath, pedestal wash hand basin and low level WC. Tiled walls, vinyl flooring.
ExteriorCommunal Courtyard Garden.
Parking:Residents car park.
Communal Gardens
