Property Description
Spacious ground floor purpose built retirement flat in the sought after "Home walk House" development.
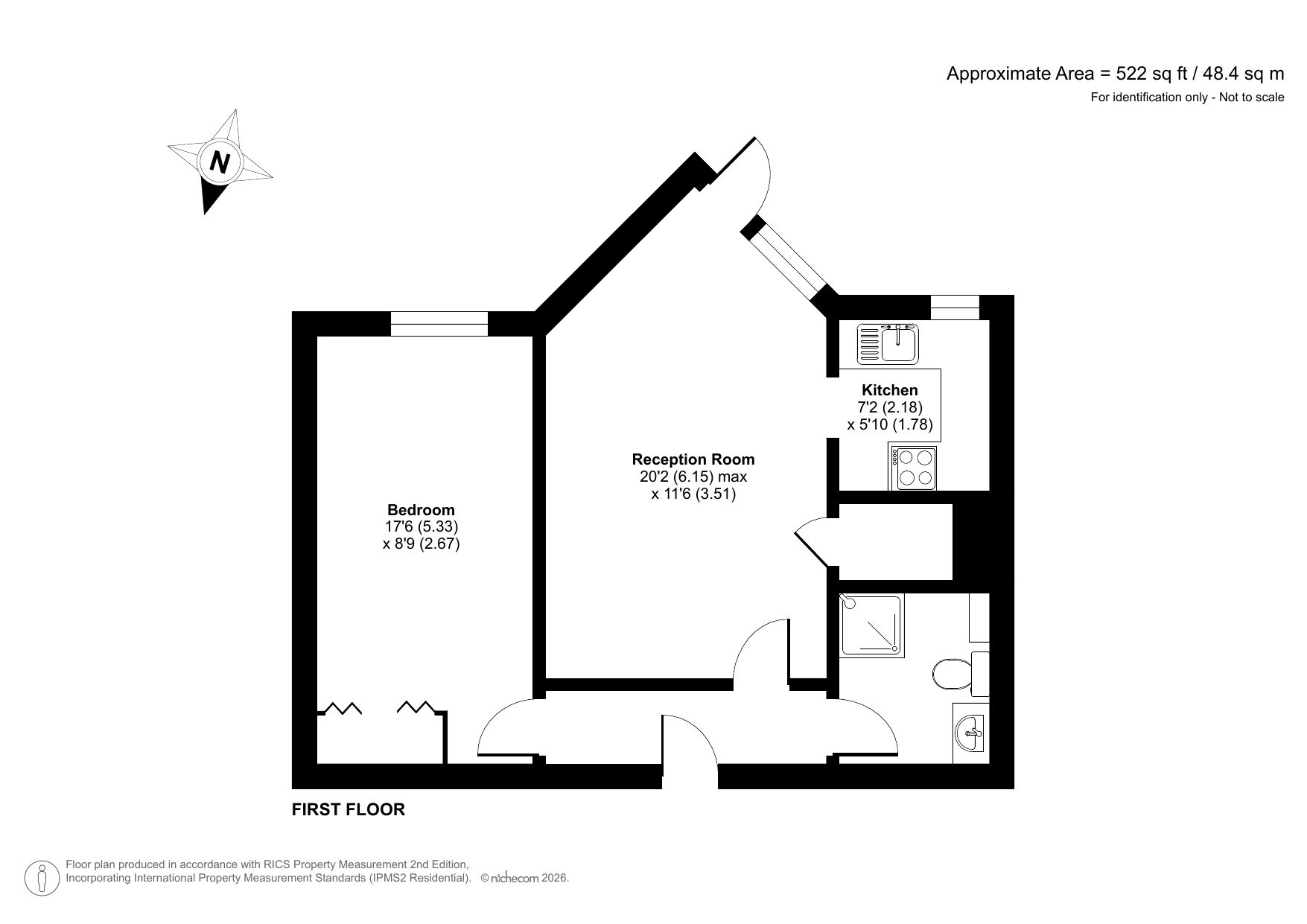
Benefitting from 20' Lounge overlooking the beautiful communal gardens allowing plenty of natural light into the property, 17' bedroom, ample storage, residents parking, laundry room, communal lounge and being sold with no onward chain.
Conveniently located for Sydenham station, local high street shops and amenities and Sydenham Hill Wood & Cox 's Walk
- ** RETIREMENT **
- Double glazing
- Electric storage heating
- Ample storage
- 20' Lounge overlooking gardens
- 17' Bedroom
- Ground floor
- Chain free
- Leasehold
- 24 hour emergency call system
- Communal lounge
- Communal laundry
- Lift access
- Minimum age (single) 60 (couple) 60 & 55
- On site manager
- Sydenham Station
- Conveniently located for local high street shops and amenities and Sydenham Hill Wood & Cox 's Walk
Rooms
Communal EntrancePart glazed communal entrance door, carpet, communal lounge, laundry room.
Entrance HallEntrance door, carpet, coved and textured ceiling.
LoungeDouble glazed door to courtyard/communal garden, full height double glazed window to rear, two wall mounted storage heaters, entry phone, arched entrance to kitchen, storage cupboard, carpet, coved and textured ceiling.
KitchenDouble glazed window to rear, range of fitted white wall and base units with work surface over, one bowl stainless steel sink unit with mixer tap, oven, hob and extractor fan to remain, space for fridge/freezer, tiled splash back, vinyl flooring, coved and textured ceiling.
BedroomDouble glazed window to rear, wall mounted storage heater, fitted wardrobe with bi folding doors, carpet, coved and textured ceiling.
BathroomThree piece bathroom suite comprising of: enclosed shower cubicle with sliding door, wall mounted electric power shower, tiled walls, inset wash hand basin with separate taps and vanity unit under, low level wc, laminate flooring. tiled walls, wall mounted electric heater, extractor fan, coved and textured ceiling.
Laundry Room Communal GardensMainly laid to lawn, two patio areas with seating.
Residents ParkingGated residents parking.
