Property Description
Wonderful third floor period conversion flat with two bedrooms, open plan, leasehold, communal courtyard, and entry phone set within a popular location on the highly sought after Upper Sydenham area.
Kirkdale is excellently located for both Forest Hill and Sydenham Stations with direct access into several main London terminals, including London Bridge and Victoria in less than 20 minutes!
A wide range of restaurants, independent shops and green spaces are on your doorstep. Crystal Palace Park, Sydenham Woods, Mayow Park and Wells Park are all within a 15 min walk offering plenty of options for walking, running and cycling. The flat is close to several popular schools and nurseries.
- Two Bedrooms
- Period Conversion Flat
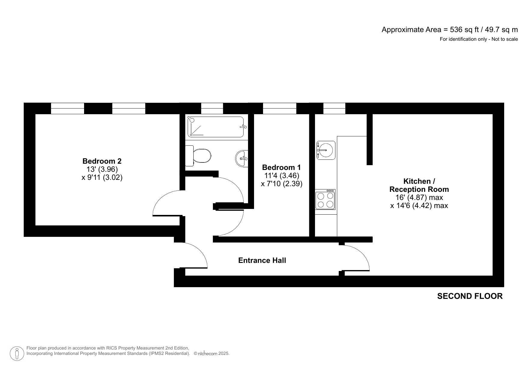
- Total floor area 49sqm
- 16' Lounge
- Open Plan
- Leasehold
- Third Floor
- Communal Courtyard
- Situated in the highly sought after Upper Sydenham area
- Excellently located for Forest Hill and Sydenham Station, independent shops in Kirkdale, High Street and Wells Park
Rooms
Communal EntranceWooden communal entrance door, carpet, stairs to top floor.
Entrance HallWooden entrance door, radiator, laminate flooring.
LoungeTwo double glazed sash windows to front, radiator, open plan to kitchen, laminate flooring, coved ceiling with spotlights.
KitchenDouble glazed window to side, range of wall and base units, wood block work surface over, stainless steel sink unit with mixer tap, integrated stainless steel oven, hob and extractor, integrated fridge/freezer, plumbed for washing machine and dishwasher, laminate flooring, coved ceiling with spotlights.
Bedroom OneDouble glazed sash window to side, double glazed window to side, radiator, laminate flooring, coved ceiling with spotlights.
Bedroom TwoDouble glazed sash window to side, radiator, laminate flooring, coved ceiling with spotlights.
BathroomDouble glazed window to side, three piece bathroom suite comprising of: panelled bath with mixer tap and mixer shower over, inset wash hand basin with mixer tap and vanity unit under, enclosed low level wc, tiled flooring, part tiled walls, coved ceiling with spotlights.
Communal CourtyardBlock paved.
