Property Description
*** Guide price £260,000-£280,000 ***
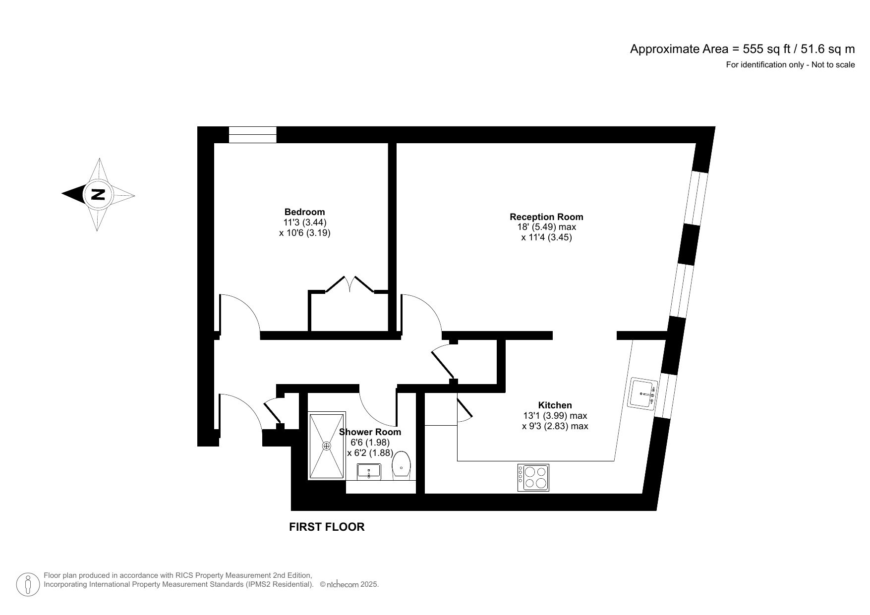
Bright and airy well presented first floor purpose built flat.
Benefits include 18' lounge, modern kitchen and bathroom, total floor area 51sqm, ample storage, residents parking and communal courtyard.
Within a short walk of Sydenham high street and station and well located for Bell Green retail park, Lower Sydenham station and the award winning Mayow Park.
- First floor purpose built flat
- Total floor area 51sqm
- 18' Lounge
- Modern kitchen and bathroom
- Ample storage
- Communal courtyard
- Residents parking
- Within a short walk of Sydenham high street and station
- Well located for Bell Green retail park, Lower Sydenham station and the award winning Mayow Park
Rooms
Communal EntrancePart glazed communal entrance door, carpet, stairs to first floor.
Entrance HallWooden entrance door, two storage cupboards, entry phone, carpet, coved ceiling, spotlights.
LoungeTwo double glazed windows to front, radiator, entrance to kitchen, carpet, coved ceiling.
KitchenDouble glazed window to front, range of fitted high gloss white wall and base units with work surface over, oven, gas hob and extractor fan to remain, integrated fridge/freezer, microwave and washing machine, cupboard housing wall mounted boiler, splash back, one bowl stainless steel sink unit with mixer tap, vinyl flooring, spotlights.
BedroomDouble glazed window to side, radiator, built in wardrobe, carpet.
BathroomHeated towel rail, three piece suite comprising of: walk in double tray shower cubicle with mixer shower over and tiled walls, inset wash hand basin with mixer tap and vanity unit under, enclosed low level wc, tiled flooring, part tiled walls, extractor fan, spotlights.
Communal CourtyardMainly paved.
ParkingResidents parking.
