Property Description
*** Guide Price £500,000-£525,000 ***
Set within an attractive period building in the prestigious Lawrie Park Triangle is this refurbished first floor flat.
Benefitting from 20' lounge/diner, two double bedrooms, period features, share of freehold, communal garden and being sold with no onward chain.
Within walking distance of Sydenham high street, Sydenham and Penge West stations and Crystal Palace Park.
- Attractive period building
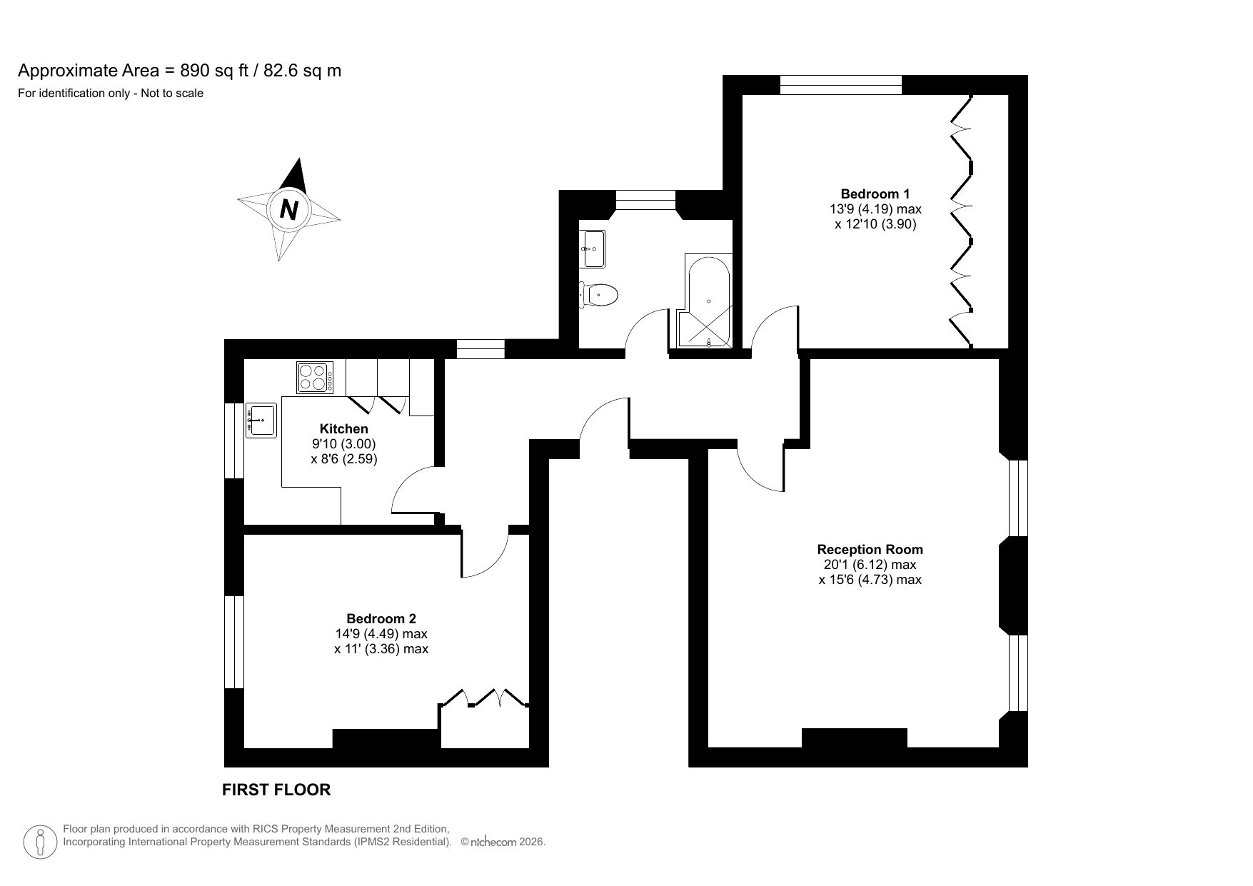
- Total floor area 88sqm
- Refurbished throughout
- Period features
- Two double bedrooms
- Beautiful kitchen and bathroom
- Share of freehold
- Communal garden
- 20' Lounge/diner
- No chain
- Situated in the ever popular Lawrie Park Triangle
- Within walking distance of Sydenham high street and Sydenham and Penge West stations and Crystal Palace Park
Rooms
Communal EntrancePart glazed wooden entrance door, stairs to first floor.
Entrance HallPart opaque glazed wooden entrance door, radiator, wooden flooring, coved ceiling.
Lounge/DinerTwo double glazed windows to rear, radiator, coal effect gas fire with marble effect insert, marble hearth and wooden surround, wooden flooring, storage cupboard, picture rail, coved ceiling with ceiling rose.
KitchenDouble glazed window to front, range of fitted wall and base units with granite work surface over, one bowl butler sink with mixer tap, oven, gas hob and extractor fan to remain, integrated fridge/freezer, microwave, washing machine and slimline dishwasher, tiled splash back, vinyl flooring, picture rail.
Bedroom OneDouble glazed window to side, radiator, full length fitted wardrobes, carpet, picture rail, coved ceiling.
Bedroom TwoDouble glazed window to front, radiator, fitted wardrobe, carpet, picture rail, coved ceiling.
BathroomOpaque double glazed window to side, radiator, three piece bathroom suite comprising of: "P" shaped panelled bath with mixer tap, hand shower and shower over, Inset wash hand basin with mixer tap and vanity unit under, low level wc, vinyl flooring, part tiled walls, extractor fan.
Communal GardenMainly laid to lawn with mature shrub borders, concrete path, outside water tap, shed.
