Property Description
Wonderful 2/3 bedroom period semi-detached cottage offered chain free with a pleasant 96' south facing garden, original features and recent fitted handmade kitchen. Set in a popular location, ideal for both Forest Hill & Sydenham Station, Kirkdale Village, Wells Park, shops, restaurants and bars.
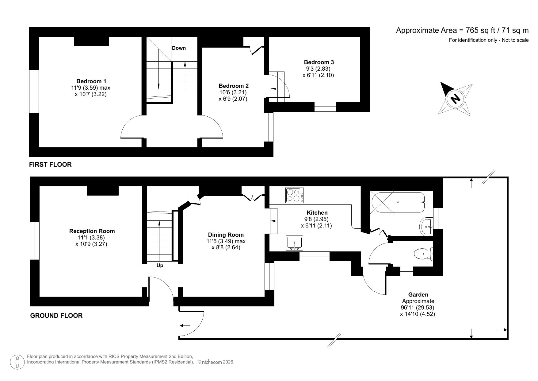
Rooms
Entrance Hall Living RoomDouble glazed window to front, original open fireplace, fitted shelves, carpet
Dining RoomDouble glazed window to rear, built in cupboard, understairs storage cupboard, wood flooring, radiator
Handmade KitchenDouble glazed window to side, wood work surfaces with butler sink, cooker, fitted shelves, exposed floorboards, four pendant lights, radiator
BathroomDouble glazed window to rear, enamel bath with built in shower over, pedestal wash hand basin, exposed floorboards, bathroom cabinet, radiator, extractor fan
Separate WCDouble glazed window to side, low flush wc, exposed floorboards, cabinet, radiator
LandingDouble glazed window to side, original exposed floorboards, radiator
Bedroom 1Double glazed window to front, original open fireplace, original exposed floorboards, radiator
Bedroom 2Double glazed window to rear, access to loft, built in cupboard, original exposed floorboards
Bedroom 3(Accessed via Bedroom 2) Double glazed window to side, original exposed floorboards, radiator
