Property Description
*** Guide Price £250,000-£275,000 ***
Spacious purpose built ground floor flat set within the ever popular Lawrie Park triangle.
Benefitting from 14' lounge, 12' bedroom, ample storage, residents parking, communal garden and being sold with no onward chain.
Within walking distance of Sydenham and Penge West stations, high streets and Crystal Palace Park
- Ground floor purpose built flat
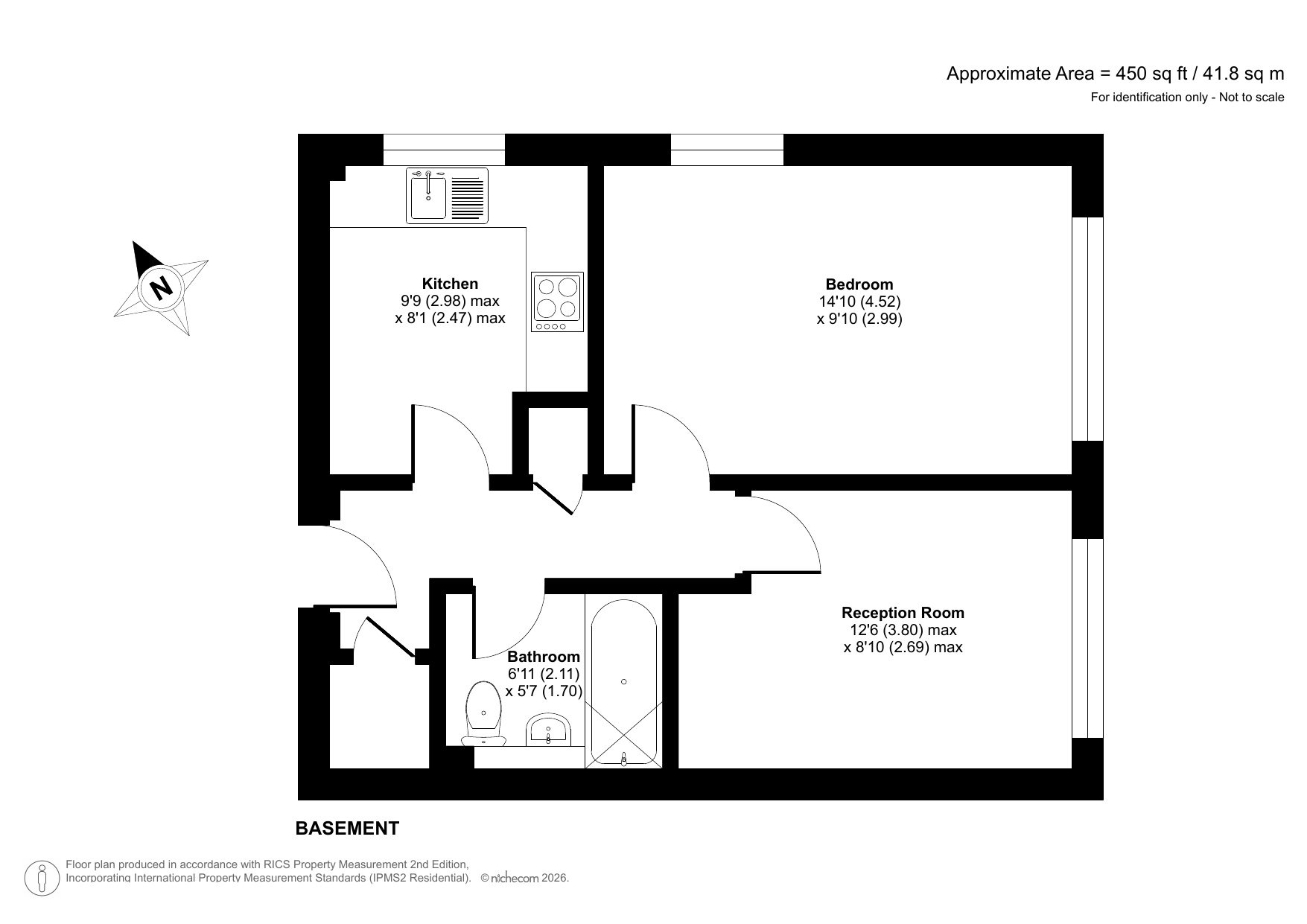
- Total floor area 42sqm
- 14' Lounge
- 12' Bedroom
- No Chain
- Communal gardens
- Residents parking
- Set within the ever popular Lawrie Park triangle
- Within walking distance of Sydenham and Penge West stations, high streets and Crystal Palace Park
Rooms
Communal EntranceGlazed communal entrance door, carpet.
Entrance HallWooden entrance door, two storage cupboards, wall mounted electric heater, entry phone, laminate flooring, textured ceiling.
LoungeDouble glazed window to side and rear, wall mounted electric heater, laminate flooring, textured ceiling.
KitchenDouble glazed window to side, range of fitted wall and base units with work surface over, one bowl stainless steel sink unit with mixer tap, space for electric cooker, space for fridge/freezer, plumbing for washing machine, tiled splash back, vinyl flooring, textured ceiling.
BedroomDouble glazed window to rear, wall mounted electric heater, carpet, textured ceiling.
BathroomWall mounted electric heater, three piece bathroom suite comprising of: panelled bath with mixer tap, pedestal wash hand basin with mixer tap and low level wc, vinyl flooring, part tiled walls, extractor fan, textured ceiling.
Communal Garden Residents Parking
