Property Description
**** GUIDE PRICE £230,000-£250,000 ****
Spacious and well presented first floor purpose built flat centrally located.
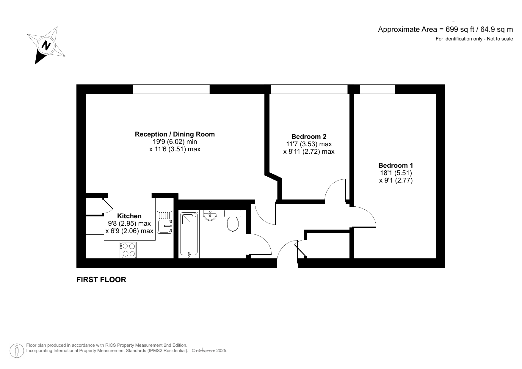
Benefitting from two double bedrooms, 19' lounge/diner, communal gardens, concierge and total floor area of 64sqm.
Well located for West Croydon station and within walking distance of public transport, parks and high street.
- Purpose built
- First floor
- Total floor area 66sqm
- Two double bedrooms
- 19' Lounge/diner
- Communal gardens
- Concierge
- Easy access of public transport and West Croydon station
- Within walking distance of parks and shops
Rooms
Communal EntranceGlazed communal entrance door, carpet, stairs and lift to first floor.
Entrance HallWooden entrance door, radiator, video entry phone, two storage cupboards, carpet.
LoungeThree double glazed windows to rear, two radiators, carpet, entrance to kitchen.
KitchenRange of fitted wall and base units with work surface over, one bowl stainless steel sink unit with mixer tap, oven, hob and extractor fan to remain, plumbing for washing machine, space for fridge/freezer, tiled splash back, vinyl flooring.
Bedroom OneDouble glazed window to rear, radiator, carpet.
Bedroom TwoDouble glazed window to rear, radiator, carpet.
BathroomThree piece bathroom suite comprising of: panelled bath with mixer tap and shower attachment, pedestal wash hand basin with mixer tap and low level wc, heated towel rail, vinyl flooring, part tiled walls, extractor fan.
Communal GardenCommunal gardens consisting of seating areas, mainly laid to lawn.
