Property Description
***GUIDE PRICE £325,000 - £350,000***
Situated just a stone's throw from Sydenham Station, this bright and airy purpose-built flat offers modern living in a highly sought-after location. The property features two well-proportioned bedrooms, brand-new bathroom, and brand-new carpets throughout.
Additional benefits include double glazing, an entry phone system, and allocated parking. This well-presented leasehold home is perfect for first-time buyers, downsizers, or investors alike.
Conveniently located close to Sydenham’s vibrant high street with a wide range of shops and amenities, and just moments from the award-winning Mayow Park – ideal for relaxing strolls.
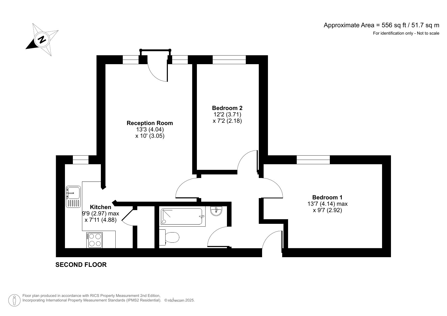
- Two Double Bedrooms
- Modern Purpose Built Flat
- Chain Free
- Leasehold
- Allocated Parking
- Double Glazing
- Entry Phone
- Contemporary Designed
- Excellently located for Sydenham Station
- Conveniently located for local high street shops and amenities and the award winning Mayow Park
Rooms
Communal Entrance Entrance HallCarpet
LoungeDouble glazed windows, door and Juliette balcony to rear, carpet, radiator
KitchenDouble glazed window to rear, wall and base units, laminate work surface, stainless steel sink, integrated oven, induction hob and extractor, washing machine plumbed for, space for fridge/freezer, vinyl flooring
Bedroom OneDouble glazed window to rear, carpet, radiator
Bedroom TwoDouble glazed window to rear, carpet, radiator
Bathroompanelled bath, rainfall shower head, shower screen, wash hand basin, in vanity unit, low flush WC, tiled flooring, heated towel rail
