Property Description
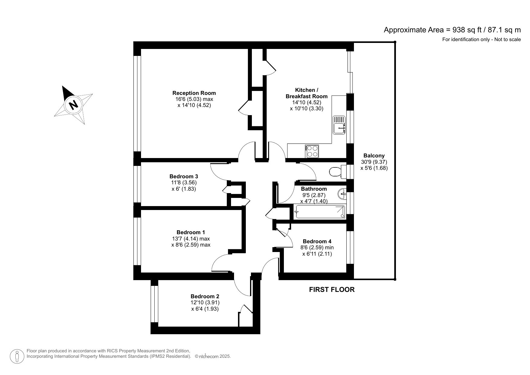
Spacious first floor purpose built maisonette located in a quiet cul de sac with a total floor area of 83sqm.
Benefitting from four good sized bedrooms, 16' lounge, 14' kitchen/diner, balcony and being sold with no onward chain.
The property does require modernisation throughout but offers a "blank canvass".
Well located for Sydenham/Forest Hill high streets and stations and is within a short walk of Sydenham Hill Woods.
- First floor
- Purpose built maisonette
- Total floor area 83sqm
- Four good sized bedrooms
- Double glazing installed in 2024
- Communal garden
- South facing balcony
- External storage cupboard
- Long Lease
- No chain
- In need of modernisation
- Well located for Sydenham/Forest Hill stations and high streets.
- Within walking distance of Sydenham Hill woods
Rooms
Entrance HallWooden entrance door, two storage cupboards, carpet, coved ceiling.
LoungeDouble glazed window to rear, wall mounted electric heater, storage heater, carpet, coved ceiling.
Kitchen/DinerDouble glazed window to front, double glazed sliding door to balcony, wall mounted electric heater, some wall and base units with work surface over, one bowl stainless steel sink unit with mixer tap, storage cupboard, part tiled walls, vinyl flooring, coved ceiling.
Bedroom OneDouble glazed window to rear, wall mounted electric heater, carpet, coved ceiling.
Bedroom TwoDouble glazed window to rear, wall mounted electric heater, built in wardrobe, carpet, coved ceiling.
Bedroom ThreeDouble glazed window to rear, wall mounted electric heater, built in wardrobe, carpet, coved ceiling.
Bedroom FourDouble glazed window to front, wall mounted electric heater, storage cupboard, carpet, coved ceiling.
BathroomOpaque double glazed window to front, two piece bathroom suite comprising of; panelled bath with mixer tap, pedestal wash hand basin, tiled flooring, tiled walls, extractor fan.
Balcony Communal Garden External Storage Cupboard
