Property Description
Ground floor purpose built studio flat located in a quiet residential development. The property does require modernisation throughout and benefits from allocated parking, access to a residents only swimming pool and communal garden and is being sold with no onward chain.
Well located for Forest Hill station and shops and the award winning Mayow Park.
*All services/appliances have not and will not be tested. *
- Ground floor
- Purpose built
- In need of complete modernisation throughout
- Access to residents only swimming pool
- Communal garden
- Allocated parking space
- No chain
- Well located for Forest Hill station and the award winning Mayow Park
Rooms
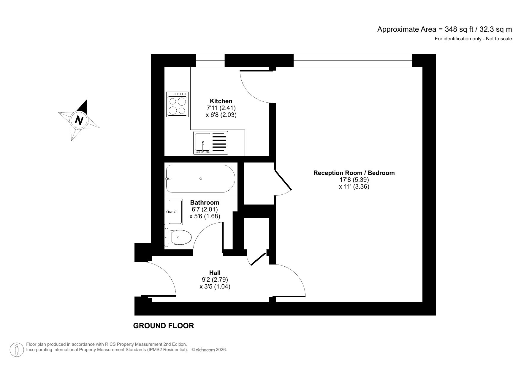
Communal EntranceWooden communal entrance door, carpet.
Entrance HallWooden entrance door, entry phone, laminate flooring, textured ceiling.
Lounge/BedroomDouble glazed window to front, storage cupboard, entrance to kitchen, laminate flooring, textured ceiling.
KitchenDouble glazed window to front, range of fitted wall and base units with work surface over, one bowl stainless steel sink unit with mixer tap, oven, hob and extractor to remain, plumbing for washing machine, space for fridge/freezer, tiled splash back, vinyl flooring.
BathroomThree piece bathroom suite comprising of: panelled bath with mixer tap and shower attachment, pedestal wash hand basin with mixer tap and low level wc, vinyl flooring, part tiled walls, extractor fan.
Communal GardenSecluded garden with seating area, mainly laid to lawn, mature shrub borders.
Swimming PoolResidents only swimming pool with seating area.
ParkingAllocated parking space.
