Property Description
Overlooking Peckham Rye common is this spacious and well presented, attractive ground floor period conversion.
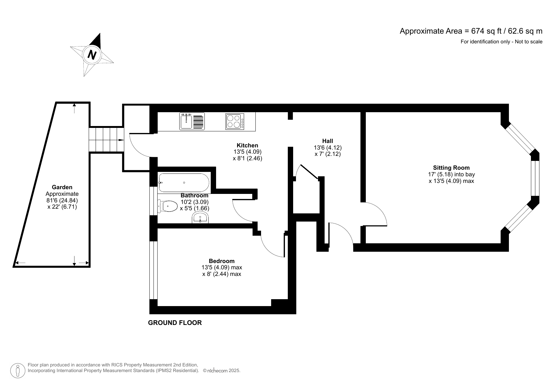
Benefitting from 81' private garden, 17' lounge with high ceilings, modern kitchen and bathroom.
Peckham Rye is located in the heart of East Dulwich moments from an abundance of shopping amenities and excellent restaurants and bars along Lordship Lane. Peckham Rye & East Dulwich stations provide rail links to the city with the open spaces of Peckham Rye Park on your doorstep.
- Attractive period conversion
- Ground floor
- Period features
- Total floor area 55sqm
- 81' Private garden
- 17' Lounge
- Modern kitchen & bathroom
- Stunning views overlooking Peckham Rye common
Rooms
Communal entrancePart opaque glazed wooden communal entrance door, carpet.
Entrance HallWooden entrance door, storage cupboard, stripped and varnished floorboards.
LoungeBay sash window to front, radiator, cast iron feature fireplace with granite hearth and wooden surround, stripped and varnished floorboards, picture rail, coved ceiling with ceiling rose.
KitchenPart glazed wooden door to rear, range of fitted white high gloss wall and base units with work surface over, one bowl stainless steel sink unit with mixer tap, oven, gas hob and extractor fan to remain, plumbing for washing machine, space for fridge/freezer, tiled splash back, wall mounted boiler, stripped and varnished floorboards.
BedroomWindow to rear, radiator, carpet.
BathroomOpaque window to rear, heated towel rail, three piece bathroom suite comprising of: panelled bath with mixer tap and shower attachment, wall mounted wash hand basin with mixer tap and low level wc., tiled flooring, tiled walls, extractor fan.
Rear GardenMainly laid to lawn with flower and shrub borders, concrete hardstanding.
