4 bedroom house for sale

Belmont Road, Northumberland Heath, Kent, DA8
Freehold, Council Tax Band D
4 2 1

Guide Price £525,000 - £550,000

epc
Ref: NOR120277

Property Description

** GUIDE PRICE £525,000 - £550,000 ** Spacious FOUR BEDROOM END OF TERRACE older style home with EXTENSION POTENTIAL (STPP) being sold with NO CHAIN, conveniently positioned for NORTHUMBERLAND HEATH PARADE, ZONE 6 STATIONS and TRANSPORT LINKS. With the advantage of OFF STREET PARKING to front, THROUGH LOUNGE, DOUBLE GLAZED and GAS CENTRAL HEATING.

  • No onward chain
  • Re-painted & new carpets throughout
  • Off road parking
  • Conservatory
  • Large family garden
  • Two bathrooms

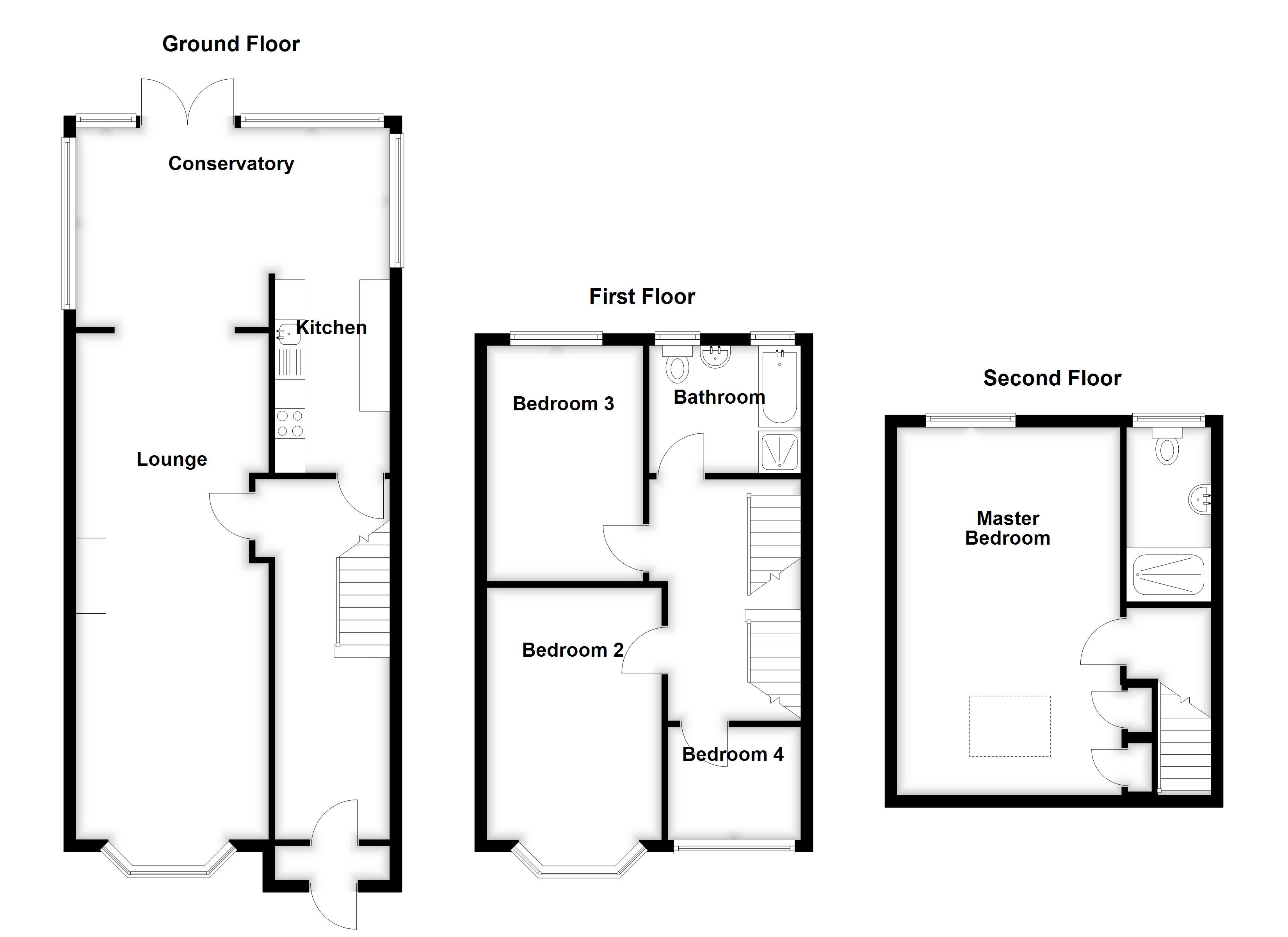
Rooms

ENTRANCE PORCH
ENTRANCE HALL
LOUNGE 3.73m x 3.28m
DINER 3.05m x 2.82m
CONSERVATORY 4.47m x 3.12m
KITCHEN 2.95m x 1.93m
LANDING 1
BEDROOM 2 4.24m x 2.97m
BEDROOM 3 3.91m x 2.64m
BEDROOM 4 2.41m x 2.03m
BATHROOM
LANDING 2 (LOFT)
BEDROOM 1 (LOFT) 6.2m x 3.53m
EN SUITE (LOFT)
REAR GARDEN 37.39m
PARKING
Utilities:
Electricity
Ask Agent
Water
Ask Agent
Heating
Ask Agent
Gas
Ask Agent
Sewerage
Ask Agent
Rights & Restrictions:
Is the property listed?
Ask Agent
Are there any restrictions associated with the property?
Ask Agent
Are there any easements, servitudes, or wayleaves?
Ask Agent
Are there any public rights of way across the property or its boundaries?
Ask Agent
Flood and Erosion Risk:
Has there been any flooding in the last 5 years?
Ask Agent
Flooding sources affecting the property:
Ask Agent
Are there any flood defences:
Ask Agent

Video Tour

Video Tour

Request a Valuation

Every year we are invited to value over 10,000 properties for sale or to let. Please request your FREE, no obligation valuation - simply enter your postcode below.