Property Description
Guide price £575,000 - £625,000
Extended Four Bedroom Semi-Detached Home – Blenheim Drive, Welling
Located on the ever-popular Blenheim Drive, this spacious and well-presented four bedroom semi-detached home offers versatile family living with the benefit of multiple reception areas and a generous corner plot garden.
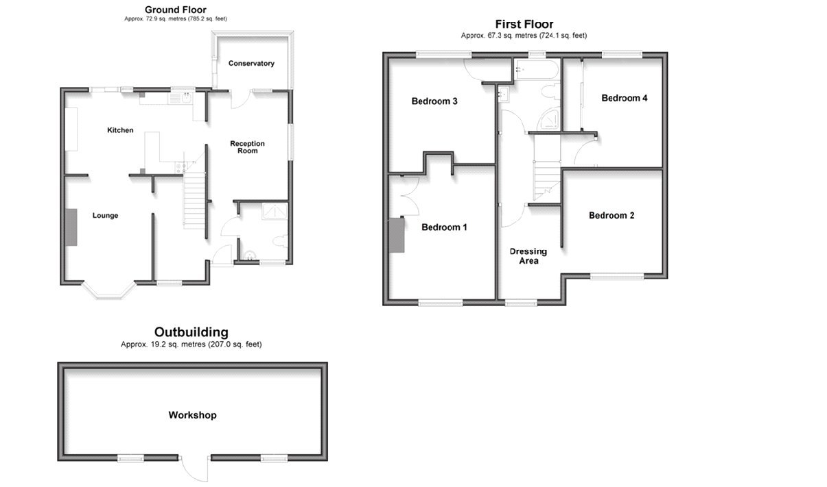
The ground floor comprises a welcoming lounge, modern kitchen/diner, additional reception rooms providing flexible living space, and a convenient ground floor shower room.
Upstairs, there are four good-sized bedrooms and a family bathroom, making this an ideal layout for a growing family.
Externally, the property boasts a generous rear garden set on a corner plot, perfect for entertaining or relaxing outdoors, along with a useful brick-built outbuilding offering extra storage or workspace potential.
Situated within easy reach of Welling High Street, local schools, and transport links, this home combines space, convenience, and flexibility.
Call today to arrange your viewing and avoid missing out!
- Extended Four bedroom semi detached
- Driveway
- Two bathrooms
- Conservatory
- Workshop
- Popular location
Rooms
Entrance Hall:Double glazed door to front and wood style laminate flooring.
Lounge: 4.17m x 3.48mDouble glazed window to front and solid wood flooring.
Reception Room: 4.34m x 3.18mDouble glazed window to side and rear, solid wood flooring and wooden door to conservatory.
Conservatory: Kitchen/Diner: 5.61m x 3.28mFitted with a range of wall and base units with contrasting work surfaces. Integrated oven, hob, filter hood and microwave. Vinyl flooring, double glazed window to rear and double glazed French doors to rear.
Ground Floor Shower Room:Fitted with a three piece suite comprising of pedestal wash hand basin, low level wc and separate walk in shower cubicle. Vinyl flooring and double glazed window to front.
Landing: Bedroom 1: 4.17m x 3.35mDouble glazed window to rear and carpet as fitted.
Bedroom 2: 3.18m x 3.15mDouble glazed window to front and carpet as fitted. Opening to dressing area.
Dressing Area: 2.9m x 2.16mDouble glazed window to front and carpet as fitted.
Bedroom 3: 3.12m x 3.12mDouble glazed window to rear and carpet as fitted.
Bedroom 4: 3.45m x 2.64mDouble glazed window to rear, fitted wardrobes and carpet as fitted.
Bathroom:Fitted with a four piece suite comprising of wash hand basin, low level wc, panelled bath and separate walk in shower cubicle. Vinyl flooring and double glazed window to rear.
Garden:Mainly laid to lawn with patio area.
Workshop:Brick built workshop with double glazed door and windows to front. Power and light.
Parking:Driveway providing off street parking.
