Property Description
*** Guide Price £525,000-£550,000 ***
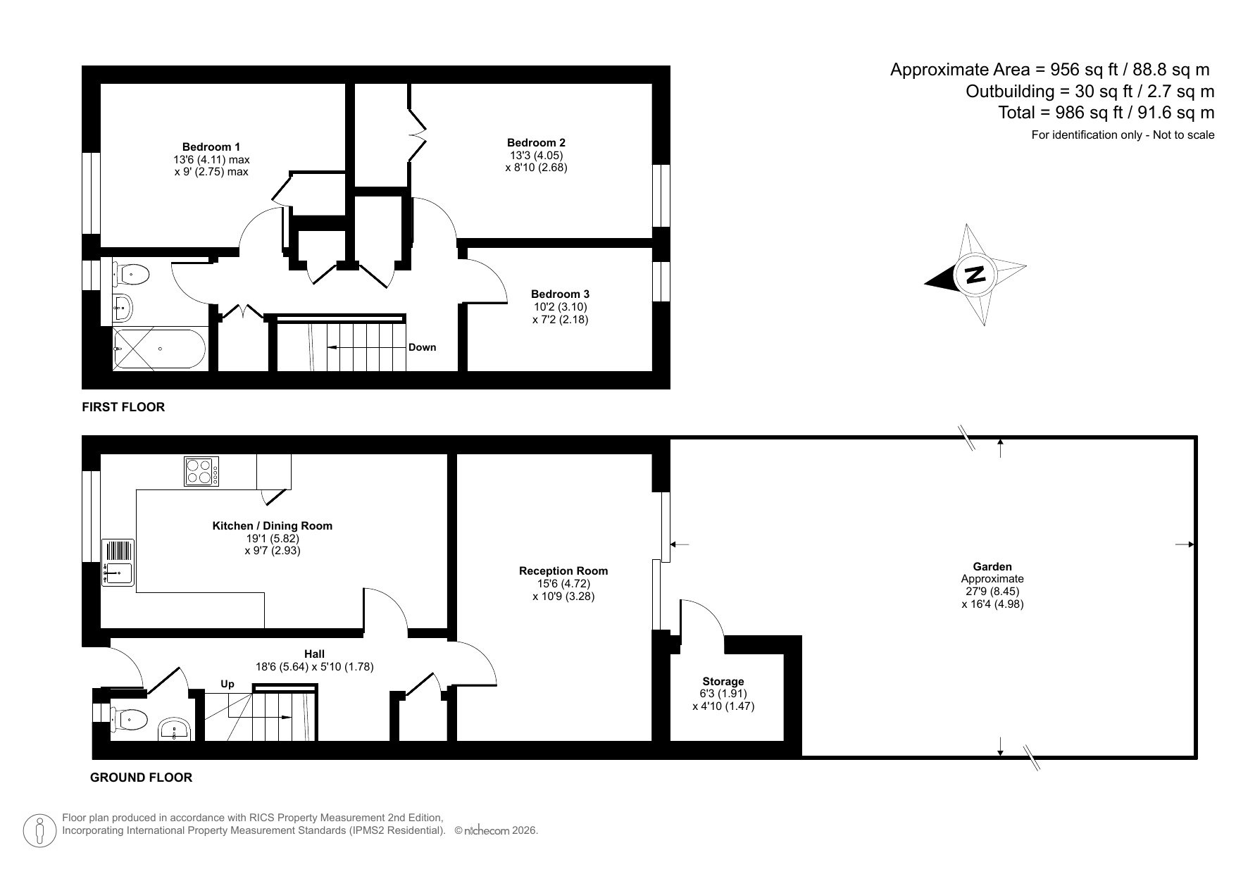
Immaculate three bedroom end of terrace house located in a quiet cul de sac.
Benefitting from three double bedrooms, 15' lounge overlooking the rear garden, 19' kitchen/diner, modern first floor bathroom and ground floor wc front garden and landscaped rear garden and solar panels.
Within a short walk of Wells Park and Crystal Palace Park and well located for Sydenham station and high street. Sydenham hill station is a 15 minute walk with links to Victoria and Blackfriars.
- End of terrace
- Three double Bedrooms
- South facing landscaped garden
- Ample storage
- Solar panels
- Total floor area 87sqm
- 19' Kitchen/diner
- Boiler installed 2024
- Cul-de-sac Location
- Within a short walk of Wells Park and Crystal Palace Park and well located for Sydenham station and high street.
Rooms
Entrance HallPart opaque double glazed UPVC entrance door, radiator, door to ground floor wc, storage cupboard, carpet.
Ground Floor WCOpaque double glazed window to front, radiator, wall mounted wash hand basin, low level wc, tiled flooring.
Kitchen/DinerKitchen: double glazed window to front, range of wall and base units with work surface over, one bowl stainless steel sink unit with mixer tap, oven, gas hob and extractor fan to remain, space for fridge/freezer, plumbing for washing machine and slimline dishwasher, wall mounted boiler, tiled splash back, tiled flooring. Diner: radiator, tiled flooring.
LoungeDouble glazed sliding door to garden, radiator, lamiante flooring.
LandingThree storage cupboards, carpet, access to loft.
Bedroom OneDouble glazed window to rear, radiator, built in double wardrobe, carpet.
Bedroom TwoDouble glazed window to front, radiator, built in wardrobe, carpet.
Bedroom ThreeDouble glazed window to rear, radiator, carpet.
BathroomOpaque double glazed window to front, radiator, three piece bathroom suite comprising of: panelled bath with separate taps and electric power shower over, pedestal wash hand basin with separate taps and low level wc, laminate flooring, part tiled walls.
Rear GardenPatio, brick built storage, laid to lawn with mature shrubs, further patio area with raised flower beds, side access.
Front Garden
