Property Description
Bright and airy newly built semi-detached family home arranged over three floors.
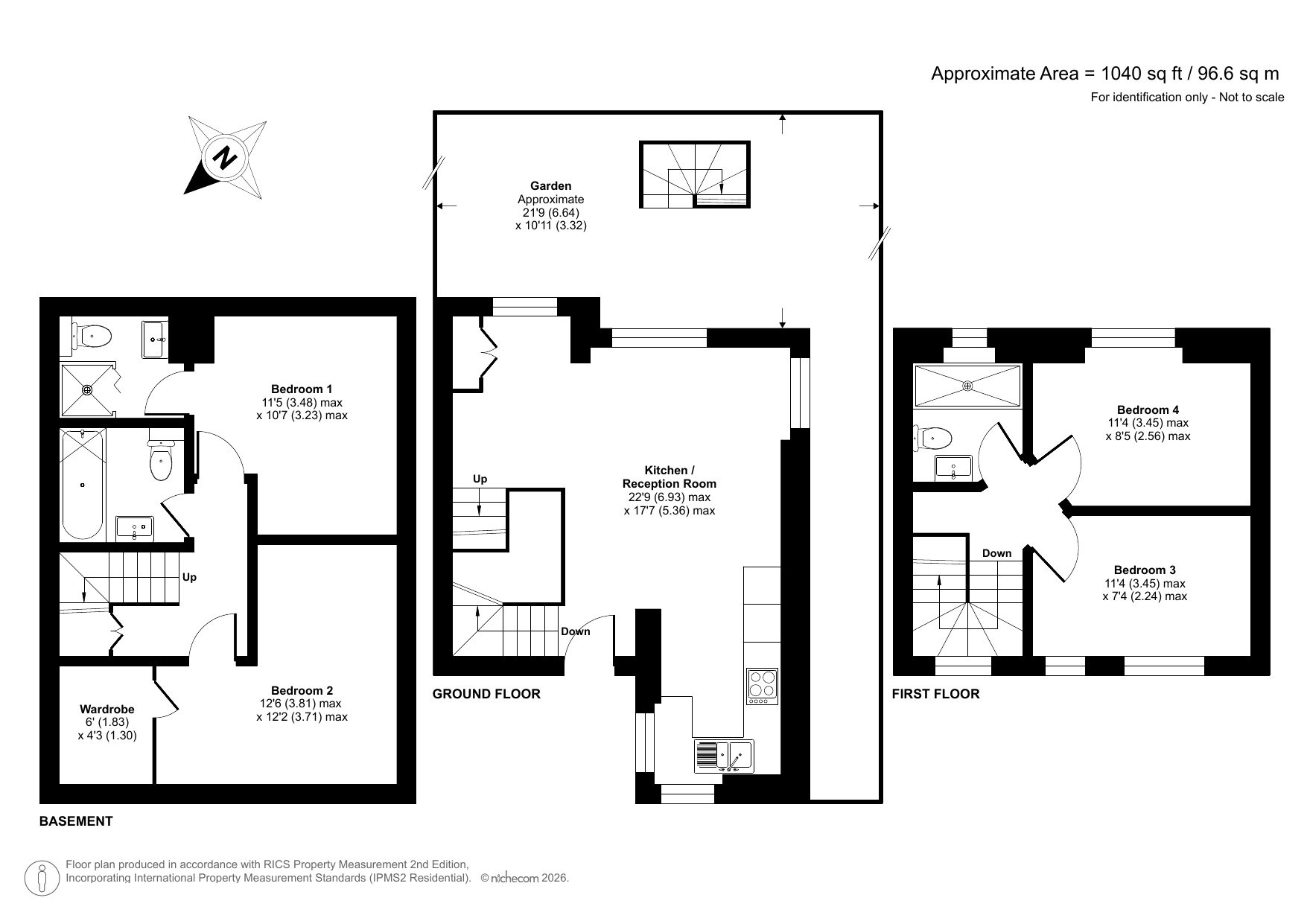
Boasting 22' open plan living area, four bedrooms, three bathrooms, driveway, side and rear garden and being sold with no onward chain.
Well located for Sydenham high street and station and within a short walk of the award winning mayow Park.
- New Build
- Semi Detached
- Accommodation arranged over three floors
- Four Bedrooms
- 22' Living area
- Three bathrooms
- Side and rear garden
- Driveway
- Total floor area 95sqm
- Well located for the award winning Mayow Park and within walking distance of Sydenham station and high street
Rooms
Living AreaLiving Area: UPVC entrance door, double glazed bi folding doors to garden, full height double glazed window to side, double glazed window to rear, radiator, cupboard housing wall mounted boiler, spotlights. Kitchen: Double glazed window to front, radiator, range of fitted wall and base units with marble work surface over, one and a half bowl stainless steel sink unit with mixer tap, Bosch oven, electric hob and extractor fan to remain, integrated Bosch microwave, fridge/freezer and dishwasher, vinyl flooring, spotlights.
Landing (Basement)Vinyl flooring, understairs storage cupboard, spotlights.
Bedroom One (Basement)Double glazed door to rear, radiator, vinyl flooring, spotlights, door to en suite.
En Suite (Basement)Three piece suite comprising of: enclosed shower cubicle with tiled walls, mixer shower over and door, inset wash hand basin with mixer tap and vanity unit under, low level wc, tiled flooring, part tiled walls, spotlights, extractor fan.
Bedroom Two (Basement)Radiator, door to large wardrobe, vinyl flooring, spotlights.
Bathroom (Basement)Heated towel rail, three piece suite comprising of: tiled panelled bath with mixer tap, mixer shower over and hand shower, inset wash hand basin with mixer tap and vanity unit under and low level wc, tiled flooring, part tiled walls, extractor fan, spotlights.
LandingDouble glazed window to front, vinyl flooring, spotlights.
Bedroom ThreeTwo double glazed windows to front, radiator, vinyl flooring, spotlights.
Bedroom FourFull height double glazed window to rear, double glazed window to rear, radiator, vinyl flooring, spotlights.
BathroomDouble glazed window to rear, heated towel rail, three piece suite comprising of: enclosed shower cubicle with tiled walls, mixer shower over and door, inset wash hand basin with mixer tap and vanity unit under, low level wc, tiled flooring, part tiled walls, spotlights, extractor fan.
Rear and Side GardenPatio area, mainly laid to lawn.
ParkingOff street parking for one car.
