Property Description
Robinson Michael & Jackson are delighted to present this exceptional Grade II listed 18th century workers cottage, beautifully reimagined to combine period character with a striking contemporary extension, creating a truly unique family home.
Originally dating back to circa 1750, the property retains a wealth of original features, including exposed brickwork, reclaimed oak detailing and traditional materials that speak to its heritage. These elements have been carefully preserved and complemented by a bold, design-led extension completed in 2022, inspired by Grand Designs-style architecture and crafted with a clear focus on both aesthetics and functionality.
At the heart of the home is an impressive open-plan kitchen, dining and family space, designed for modern living and entertaining. Featuring polished concrete flooring with underfloor heating, bespoke cabinetry crafted from reclaimed timber, quartz worktops, Siemens appliances and a Quooker boiling water tap, the kitchen balances high specification with warmth and texture. A central island and statement lighting create a natural focal point, while expansive four-metre bifold doors open seamlessly onto the garden, flooding the space with natural light.
The original part of the house offers a more intimate and cosy setting, with a charming lounge centred around a feature fireplace and characterful finishes, providing a perfect contrast to the contemporary rear extension. A separate utility area adds practicality, alongside a ground floor bathroom.
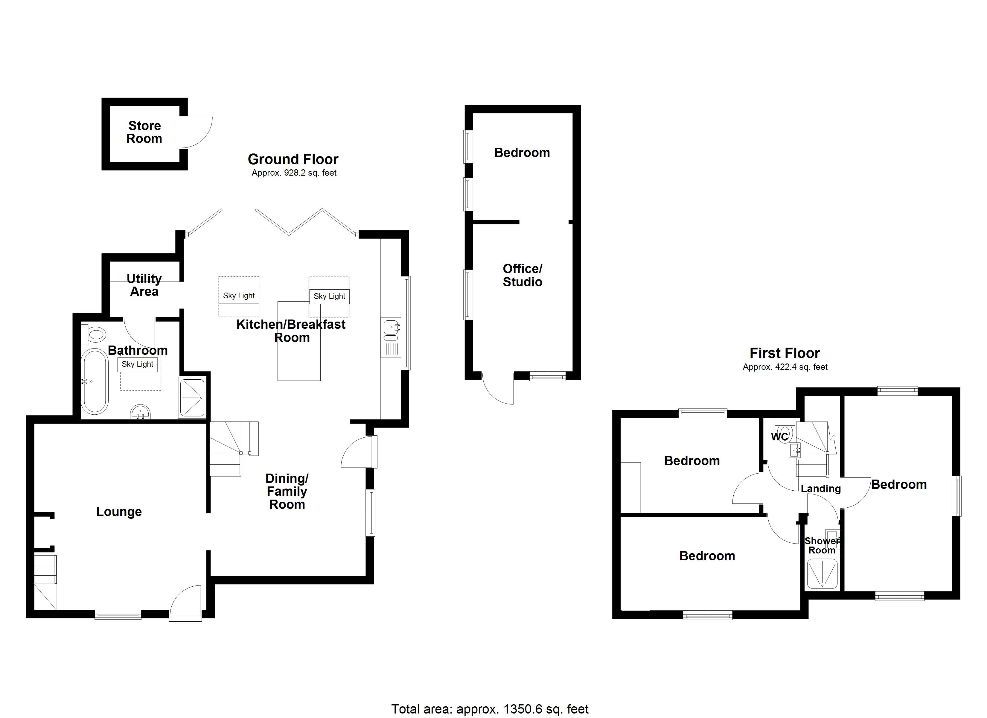
Upstairs, the property offers three bedrooms and additional washroom facilities. While modest in size in keeping with the original cottage proportions, the rooms are full of charm, and the principal bedroom enjoys attractive views over surrounding fields, reinforcing the home’s peaceful rural setting.
Externally, the property continues to impress. The landscaped rear garden has been thoughtfully designed to offer both visual appeal and ease of maintenance, with defined seating areas and a level astro lawn ideal for family use and entertaining. To the front, a block-paved driveway provides off-road parking for multiple vehicles.
A standout feature is the fully insulated outbuilding, complete with power and offering excellent flexibility as a fourth bedroom, home office, studio or creative workspace, with further potential for additional facilities subject to requirements.
This is a rare opportunity to acquire a home that successfully bridges heritage and modern design, where original materials and craftsmanship have been echoed and elevated through contemporary architecture. The result is a distinctive and highly liveable space, ideally suited to buyers who value thoughtful design, quality finishes and a home with genuine character.
Personal interest: The owner of this home is an employee of Robinson Jackson.
- Grade II-listed 18th century workers’ cottage, thoughtfully reimagined
- Striking contemporary extension inspired by Grand Designs-style living
- Bespoke kitchen with quartz worktops, Siemens appliances & Quooker tap
- Open-plan kitchen/dining space with polished concrete floors & 4m bifold doors
- Driveway parking for multiple vehicles and a landscaped rear garden
Rooms
Lounge 4.6m x 4.27mWindow to front, Storage cupboard, stairs, twoopen plan, door
Kitchen/Dining Room 5.38m x 4.47mWindow to side, two skylights, bi-fold door, door
Utility Room 1.73m x 1.37mOpen plan, door
Dining/ Family Room 3.84m x 3.76mWindow to side, open plan, door
BathroomSkylight, door
Office/Studio 3.66m x 2.46mWindow to side, window to front, open plan, door
Bedroom/Study 2.64m x 2.46mTwo windows to side
Store RoomDoor
LandingDoor
Bedroom 1 4.83m x 2.67mWindow to front, window to side, window to rear, door
Bedroom 2 4.45m x 2.3mWindow to front, door
Bedroom 3 3.43m x 2.34mWindow to rear, fireplace, door
WC Shower Room
