Property Description
Guide Price £240,000 - £260,000
This charming three-bedroom home offers a bright and airy layout, modern interior condition With excellent transport links,, and no chain, it’s an ideal move-in-ready home!
- 1131.4 Square Feet
- 0.5 Miles to Gillingham Station
- 1.2 Miles to Medway Maritime Hospital
- On Street Parking (No Permit Required)
- Excellent Local Schools
- No Forward Chain
- Viewing Highly Recommended
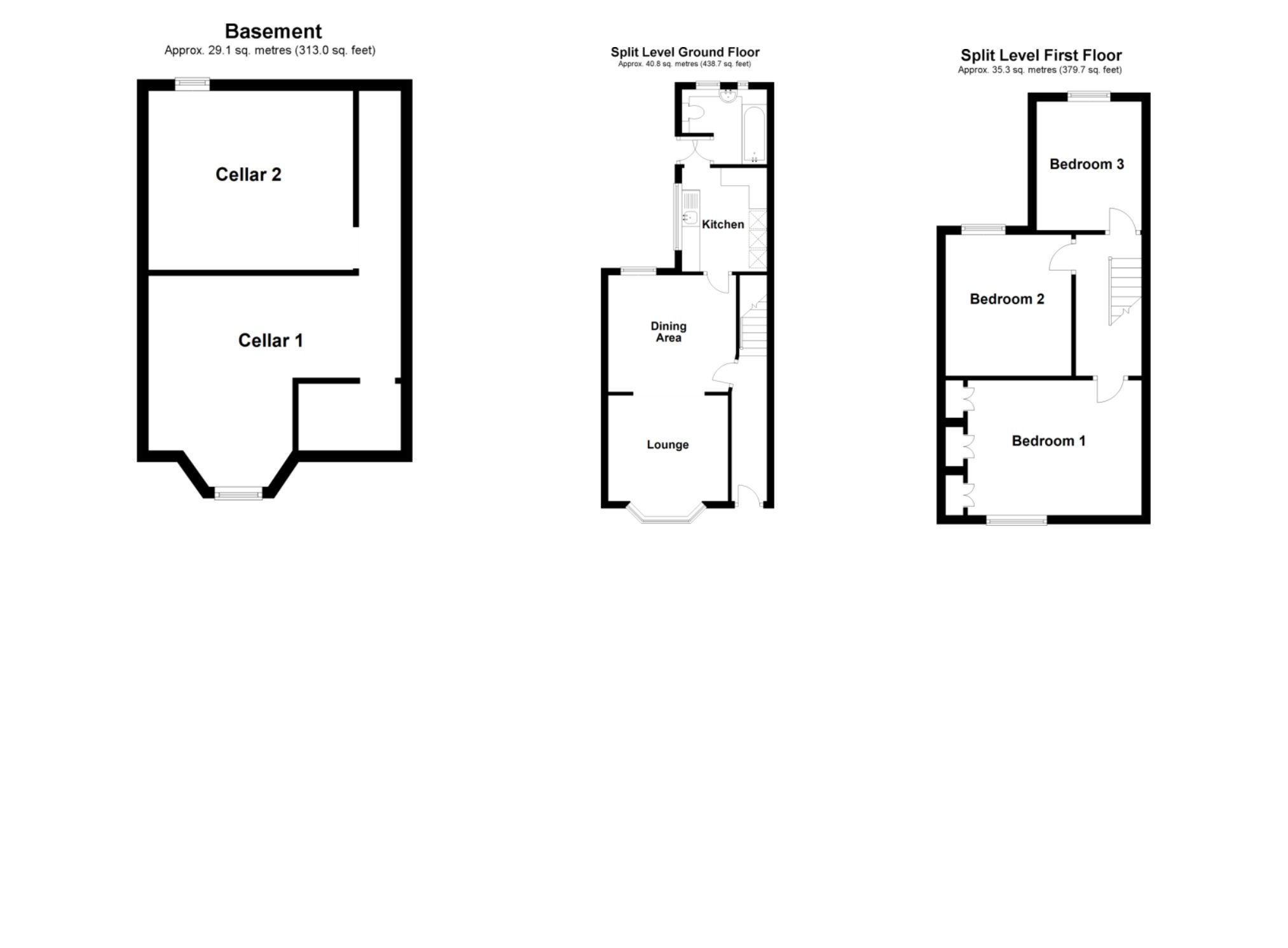
Rooms
Entrance Hall 4.01m x 0.76mDouble glazed door to front. Radiator. Stairs to first floor. Laminate flooring.
Living Room 3.86m x 3.45mDouble glazed bay window to front. Radiator. Laminate flooring.
Dining Room 3.53m x 3.25mDouble glazed window to rear. Radiator. Laminate flooring.
CellarLighting.
Kitchen 2.92m x 2.5mDouble glazed window to side. Door to side. Range of wall and base units with worksurface over. Space for appliances Laminate flooring.
Ground Floor Bathroom 2.29m x 2.16mDouble glazed window to rear. Low level Wc. Vanity wash hand basin. Heated towel rail. Bath with shower attachment. Vinyl flooring.
Landing 3.86m x 1.6mCarpet. Loft access.
Bedroom One 4.01m x 2.97mTwo double glazed window to front. Radiator. Fitted wardrobes. Laminate flooring.
Bedroom Two 3.28m x 3.07mDouble glazed window to rear. Radiator. Laminate flooring.
Bedroom Three 2.92m c 2.44mDouble glazed window to rear. Radiator. Laminate flooring.
GardenPatio. Fenced in. Outside tap. North east facing.
ParkingOn Street parking no permit required.
