Property Description
An impressive and spacious three bedroom semi detached house, offered to the market chain free. Located just off Plumstead Common and within easy reach of local shops, schools and amenities.
- 14' Living Room
- 13' Dining Room
- 12' Third Reception Room
- First Floor Bathroom and Shower Room
- 11' Fitted Kitchen
- No Chain
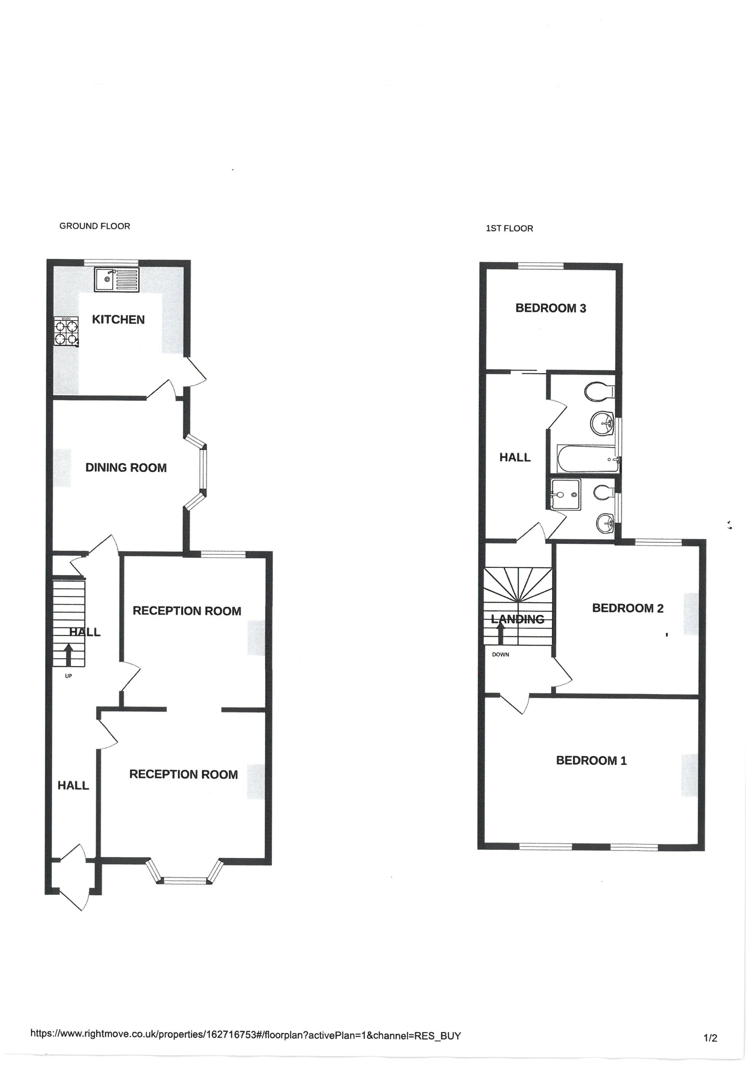
Rooms
Entrance Hall:Carpet as laid, under stairs storage cupboard, stairs to first floor.
Living Room: 4.95m x 4.47mCarpet as laid, double glazed bay window to front.
Dining Room: 4.04m x 3.84mCarpet as laid, double glazed bay window to rear.
Reception Room: 3.8m x 3.58mCarpet as laid, double glazed bay window to side.
Kitchen: 3.35m x 3.6mTwo double glazed windows, door to side giving access to garden. Fitted with a range of wall and base units with complementary work surface, space for appliances, built in electric oven, five ring gas hob with filter hood.
Landing: Bedroom 1: 5.77m x 3.94mCarpet as laid, two double glazed windows to front.
Bedroom 2: 4.17m x 3.8mCarpet as laid, double glazed window to rear.
Bedroom 3: 3.63m x 2.8mCarpet as laid, double glazed window to rear.
Bathroom:Vinyl flooring, frosted double glazed window to side. Fitted with a three piece suite comprising: a panelled bath, pedestal wash hand basin and low level WC.
Shower Room:Vinyl flooring, frosted window. Fitted with a three piece suite comprising: a corner shower cubicle, pedestal wash hand basin and low level WC.
Garden:A well established tiered rear garden. Mainly laid to lawn with flower and shrub borders. Paved patio area, shed and greenhouse to remain. Side access gate.
