Property Description
**GUIDE PRICE £450,000 to £475,000**
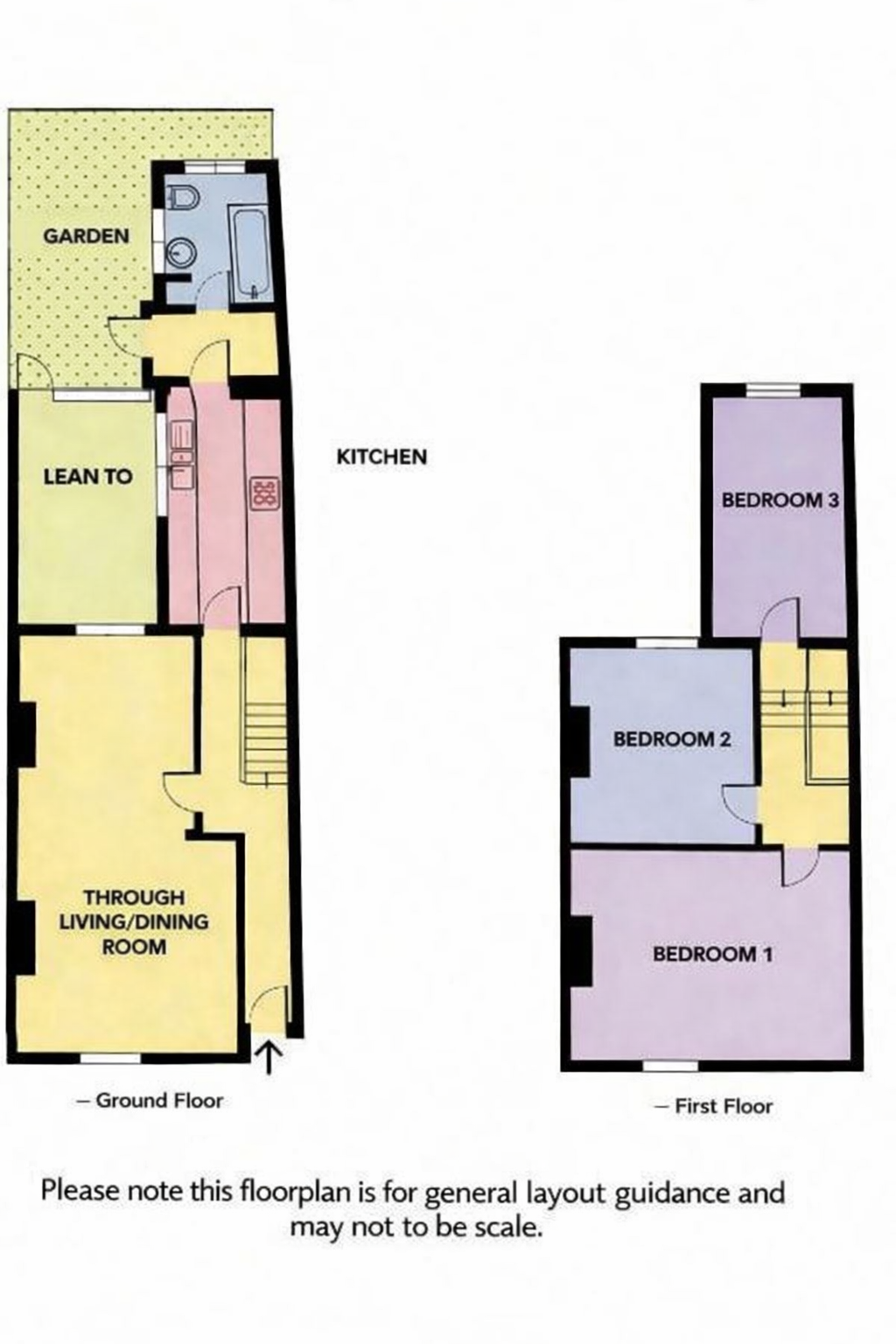
A spacious three bedroom family home located just moments away from Woolwich Town Centre for Mainline Station, DLR and Elizabeth Line.
- 23ft Living/Dining Room
- 11ft Fitted Kitchen
- 15ft Primary Bedroom
- Gas Central Heating
- Rear Garden
- NO CHAIN
Rooms
Entrance HallLaminate flooring, stairs to first floor, understairs storage area.
Through Living/Dining Room 7.1m x 3.66m closing to 2.97mLaminate flooring, double glazed window to front.
Kitchen 3.48m x 2.03mRange of matching wall and base units with complementary work surfaces over, built in elctric oven and gas hob with fiter hood over, integral washing machine, window, laminate flooring.
LobbyDoor to garden.
BathroomPanelled bath with shower screen, pedestal wash hand basin, low level WC, cupboard housing combi boiler, two frosted windows.
Landing Carpet, access to loftBedroom 1 4.65m x 3.48mCarpet, double glazed window
Bedroom 2 3.56m x 2.97mLaminate flooring, double glazed window to rear.
Bedroom 3 3.7m x 2.03mLaminate flooring, double glazed window.
