Property Description
Guide Price: £450,000-£475,000
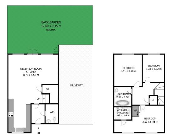
Beautifully presented and only three years old, this modern three-bedroom semi-detached home on Western Cross, Ashmere, Greenhithe is offered chain free and remains in excellent condition, still benefitting from its NHBC warranty. The property features a spacious open plan layout including a bright living area, contemporary kitchen/diner, three generous bedrooms with an en-suite to the master, a stylish family bathroom, and a convenient downstairs WC. Externally, it boasts a carport with driveway parking for 2–3 vehicles and a larger-than-average garden ideal for families. Perfectly located, the home is within easy reach of local amenities, well-regarded schools, and Bluewater Shopping Centre, while Greenhithe and Ebbsfleet International stations provide excellent rail links into London. With its modern design, ample space, and prime location, this is an ideal home for families and commuters alike.
- Countryside Property
- Semi-Detached House
- Private Driveway
- Larger Than Average Garden
- Close to Bluewater Shopping Centre
- Easy Access to A2/M25 Motorways
- Sought After Ashmere Location
Rooms
Entrance Hall:Radiator. Laminate flooring.
Cloakroom:Low level WC. Wash hand basin. Part tiled walls. Laminate flooring.
Open Plan Living: 8.70m x 5.58mDouble glazed windows and doors to rear leading to rear garden. Radiator. Laminate flooring. Storage cupboard. Carpeted stairs to first floor. Kitchen Area: Double glazed window to front. Ramge of matching wall and base units with complementary work surfaces over. Stainless steel sink with drainer. Integrated electric oven, hob and extractor. Integrated fridge freezer. Integrated dishwasher. Spotlights. Laminate flooring.
Landing:Carpet. Storage cupboard.
Bedroom One: 5.58m x 3.10mTwo double glazed window to front. Radiator. Built in wardrobe. Carpet.
Ensuite: 1.98m x 1.46mLow level WC. Wash hand basin. Shower cubicle. Part tiled walls. Heated towel rail. Spotlights. Tiled flooring.
Bedroom Two: 3.61m x 3.10mDouble glazed window to rear. Radiator. Carpet.
Bedroom Three: 3.33m x 2.32mDouble glazed window to rear. Radiator. Carpet.
Bathroom: 2.19m x 1.98mLow level WC. Wash hand basin. Panelled bath with fitted shower and shower screen. Spotlights. Part tiled walls. Heated towel rail. Tiled flooring.
