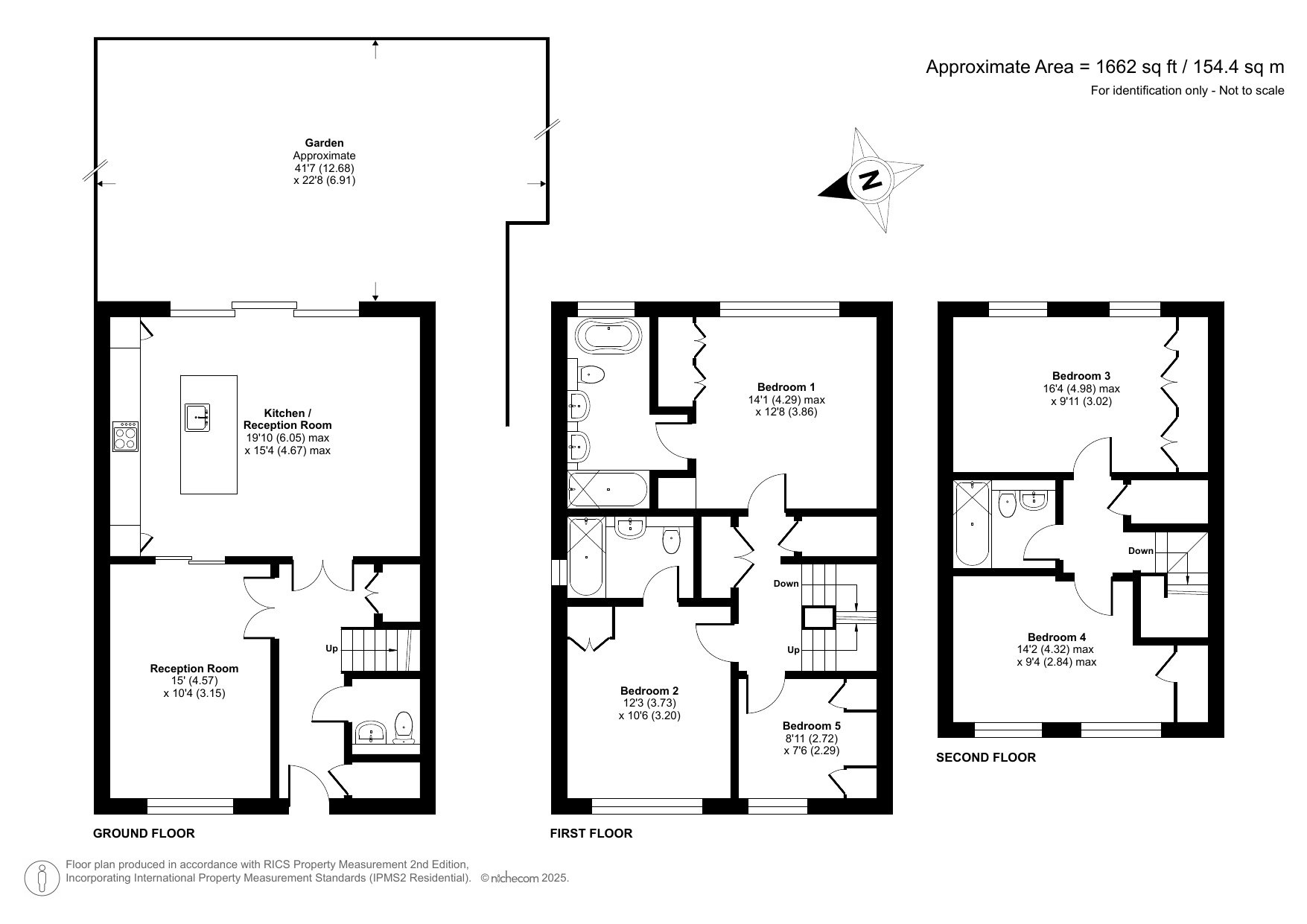
Property Description
Stunning and substantial 4.5 bedroom detached family home offered chain free, designed and built by award winning developer 'Luxgrove' in 2022. Set within a secluded, leafy cul-de-sac on the prestigious Lawrie park triangle.
This immaculate home boasts integrated smart features such as heating, lighting and blinds. Other benefits include air conditioning, stunning kitchen/dining room with integrated appliances, three bathrooms, fitted wardrobes and delightful interior decoration.
Externally there are two parking spaces, an EV charger and a pleasant rear garden.
Excellently located for Crystal Palace Park, transport links, restaurants, bars and locally renowned schools. London Bridge is approximately 20 minutes from Sydenham station and Victoria is approximately 20 minutes from Penge East station.
Warranty: ICW until 18/11/2032
Rooms
Entrance HallRing alarm panel, engineered oak herringbone flooring, underfloor heating, understairs cupboard, cupboard with wall mounted boiler and media centre
CloakroomVitra hand basin, floating wall mounted wc, wall light, LED light strip, spotlights, underfloor heating, extractor fan
Living RoomDouble glazed windows to front, LED lit media unit with integrated cupboards and shelves, smart controlled blinds, engineered oak herringbone flooring, underfloor heating, spotlights, LED light strip, sliding pocket door to:-
Kitchen Dining RoomRange of units and LED lit shelving, integrated oven, microwave/oven, quicktherm hob and concealed extraction, wine fridge, dishwasher and fridge/freezer, stunning island centrepiece with butler sink and recessed seating area, corian work surfaces, pendant lighting, spotlights, LED light strip, engineered oak herringbone flooring, underfloor heating, double glazed sliding doors to garden
LandingUtility cupboard plumbed for washing machine, space for dryer, wall units and work surface. separate airing cupboard, spotlights, carpet
Main BedroomDouble glazed windows to rear, part wood panelled wall, air conditioning unit, built in wardrobes with lighting, bedside wall lights, spotlights, carpet, radiator
Ensuite BathroomDouble glazed frosted window to rear, freestanding bath, walk in shower with recessed shelf, his and her basins set in floating vanity unit, wall mounted mixer taps, floating wall mounted wc, spotlights, LED light strips, heated towel rail, extractor fan
BedroomDouble glazed window to front, part wood panelled wall, built in wardrobes with lighting, bedside wall lights, spotlights, carpet, radiator
Ensuite Shower RoomDouble glazed frosted window to side, walk in shower, basin set in floating vanity unit, wall mounted mixer taps, floating wall mounted wc, spotlights, LED light strip, heated towel rail, extractor fan
Nursery/Dressing RoomDouble glazed window to front, fitted wardrobes with built in dressing table, carpet
LandingCupboard, spotlights, carpet
BedroomTwo double glazed windows to rear, air conditioning unit, part wood panelled wall, built in wardrobes with lighting, bedside wall lights, spotlights, carpet, radiator
Bedroom/OfficeTwo double glazed windows to front, air conditioning unit, built in cupboard, fitted his and hers desk with drawers and shelves, spotlights, carpet, radiator
BathroomBath with shower over, basin set in floating vanity unit, wall mounted mixer taps, floating wall mounted wc, spotlights, LED light strip, heated towel rail, extractor fan
