Property Description
Guide Price £450,000 - £500,000
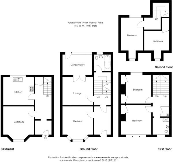
A rare and imposing period property arranged over four floors, currently operating as a fully licensed 5-bedroom HMO with a planning application submitted to increase to 6 bedrooms.
Offering excellent potential gross income of £48,000 per annum (based on £660 pcm average per room), this is a genuine turnkey investment in one of Strood’s most convenient locations – just 0.2 miles (4-minute walk) from Strood mainline station with fast services to London St Pancras, Victoria and Cannon Street.
Spacious accommodation, high ceilings, large windows and period charm throughout. Offered with no onward chain for a quick, straightforward purchase.
Ideal for investors seeking strong yields in a proven lettings hotspot. Early viewing highly recommended.
- 1937 Square Feet
- Huge Period Property set over Four Floors
- Licensed 5 Bedroom HMO with pending application for 6
- Potential income of £48,000 per annum (assuming average of £660 per room per month)
- 0.2 Miles to Strood Train Station
- No Chain
Rooms
Entrance Hall 3.23m x 1.9mLaminate flooring, double glazed front door, coved ceiling. Stairs to lower ground floor. Stairs to first floor.
Bedroom 4.4m x 3.89mLaminate flooring, double radiator, double glazed bay window to front, coved ceiling, fire door.
Bathroom 1.96m x 1.75mTiled flooring, low level w/c, pannelled bath with twp taps, basin with mixer tap, double glazed window to rear, fully tiled walls.
Communal Lounge 3.89m x 3.58mLaminate flooring, double radiator, doors to conversatory, coved ceiling, fire door.
Utility Room 3.73m x 1.98mLaminate flooring, space for appliances , double glazed window & door to read leading to garden.
Lower Ground Floor Lower Ground Entrance 1.96m x 1.75mVinyl flooring, Entrance door, fuse board, gas meter.
Hallway 4.32m x 1.75mLaminate flooring, double radiator, under stairs cupboard, stairs to ground floor.
Bedroom 4.17m x 3.68mLaminate flooring, double radiator, double glazed bay window to front, built in storage cupboard.
Kitchen 3.7m x 3.45mLaminate flooring, wall to base units with roll top work surface over, sink drainer with mixer tap & splash back, extractor fan, double glazed window to rear, space for appliances.
First Floor First Floor LandingCarpet, double radiator, storage cupboard, stairs to landing.
Bedroom 4.01m x 3.73mCarpet, double radiator, storage cupboard, double glazed window to front, coved ceiling, fire door.
Bedroom 3.86m x 3.53mCarpet, double radiator, double glazed window to rear, built in cupboard x two, feature fire place, fire door.
Shower Room 2.24m x 1.9mTiled flooring, low level w/c, pannelled bath with two taps, shower cubicle, single radiator, double glazed window to front.
Second Floor Second Floor LandingCarpet, storage cupboard, double glazed window to side.
Bedroom 2.64m x 2.46mLaminate flooring, single radiator, double glazed to front , fire door.
Bedroom 4.04m x 2.74mCarpet, single radiator, double glazed window to front , fire door.
Rear gardenPatio area, Side access, power socket.
