Property Description
Guide Price- £190,000- £210,000
Robinson Michael & Jackson present this stunning 2-bedroom house, beautifully designed and finished to a high standard throughout. The property offers a spacious lounge, a modern fitted kitchen, two generous bedrooms, and a stylish family bathroom. Outside, you’ll find a private garden ideal for relaxing or entertaining. Conveniently located close to local shops, excellent schools, and transport links, this home is perfect for first-time buyers, small families, or investors seeking a move-in-ready property.
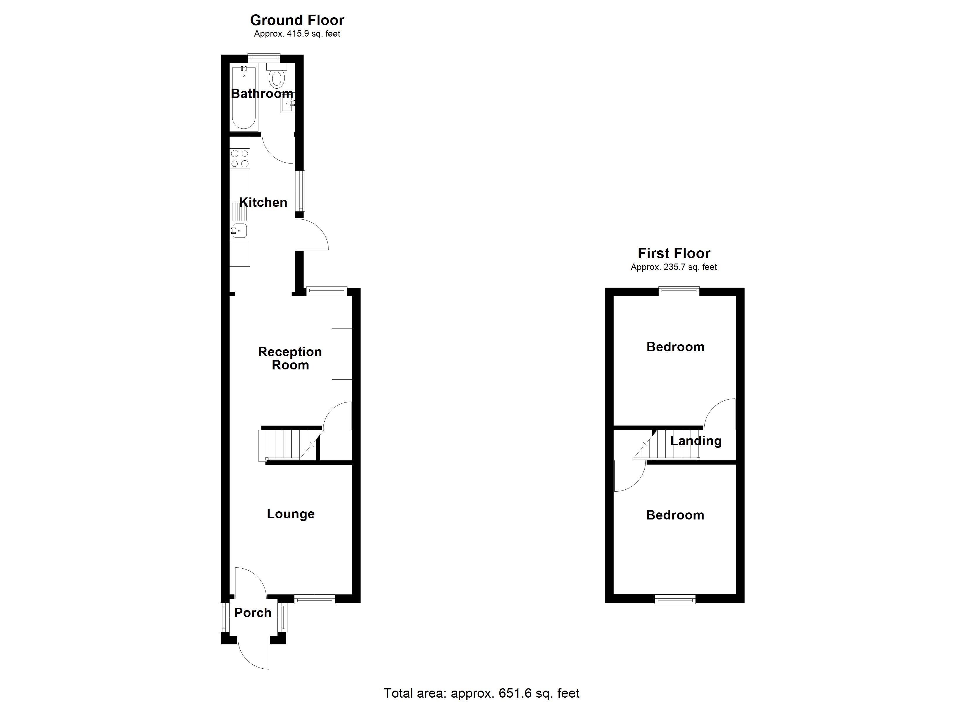
- 651.6 Square Feet
- 0.4 Miles to Gillingham Train Station
- Stunning Modern Bathroom
- Excellent Transport Links
- Close to Local Shops, Schools, and Amenities
- Viewing Highly Recommended
Rooms
Entrance 1m x 0.8mDouble glazed window. Laminate flooring.
Lounge 3.19m x 2.98mDouble glazed window to front. Laminate flooring. Radiator.
Dining Room 3.36m x 2.88mDouble glazed window to rear. Understairs cupboard. Laminate flooring. Radiator.
Kitchen 3.66m x 1.81mDouble glazed door to garden. Range of wall and base units with worksurface over. Space for appliances. Induction hob and oven. Laminate flooring.
Bedroom One 3.19m x 2.98mDouble glazed window to front. Built in cupboard. Carpet. Radiator.
Bedroom Two 3.19m x 2.97mDouble glazed window to rear. Built in storage. Combi boiler. Carpet. Radiator.
Bathroom 1.88m x 1.57mDouble glazed window to rear. Low level WC. Vanity wash had basin. Bath with shower over. Heated towel rail. Laminate flooring.
Rear GardenLaid to lawn. East facing garden.
