Property Description
***Guide Price £450,000 - £475,000***
***A spacious and well presented three double bedroom family home, with first floor shower room. Conveniently located for Plumstead Common, local schools and transport links.***
- 24ft Living/Dining Room
- 12ft Modern Fitted Kitchen
- Modern First Floor Shower Room
- Three Double Bedrooms
- Landscaped Rear Garden
- No Chain
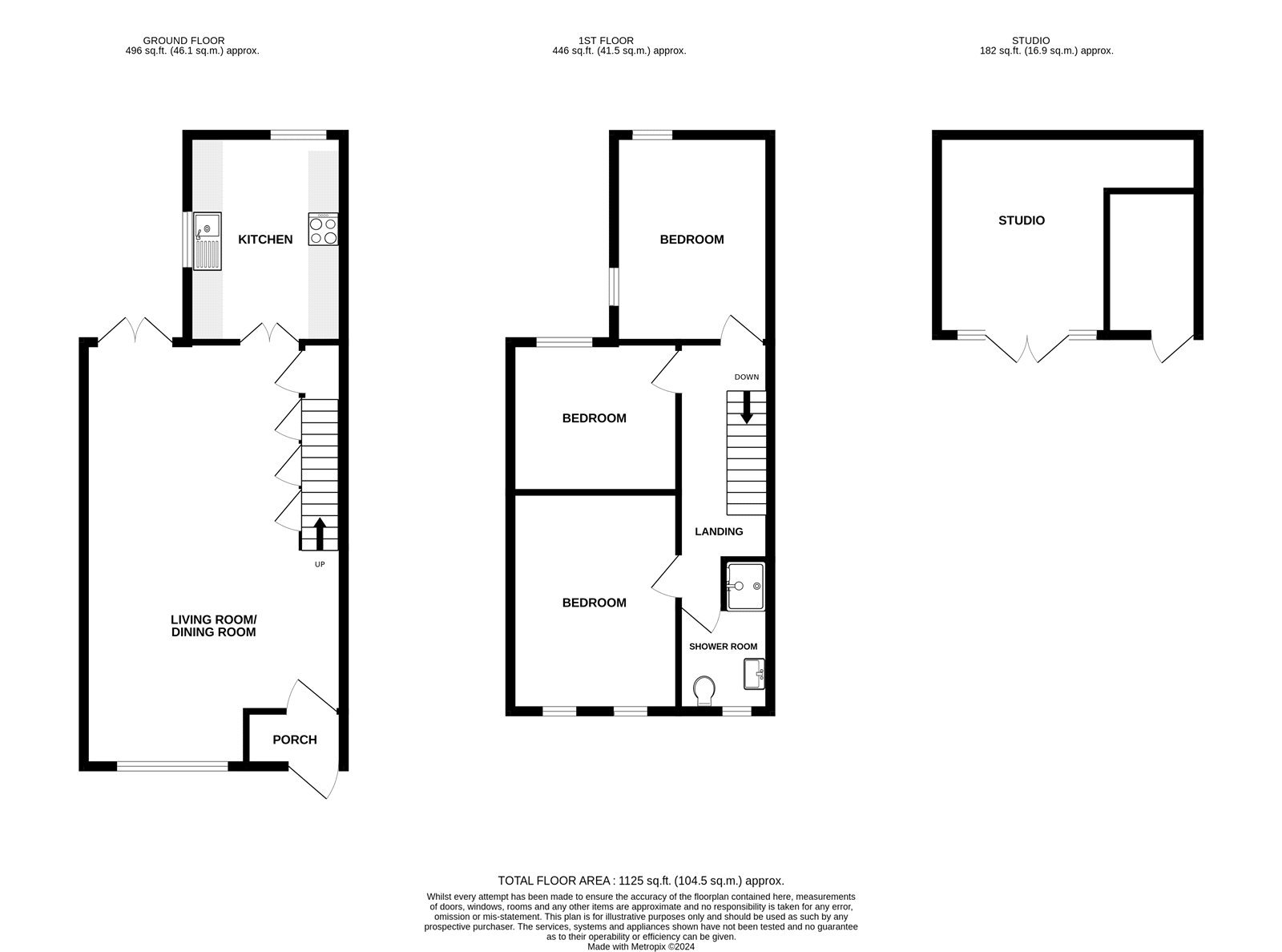
Rooms
Entrance Porch Living/Dining Room 7.52m x 4.65mWooden flooring, understairs storage cupboard. Double glazed window and doors.
Kitchen: 3.76m x 2.82mFitted with a range of modern wall and base units with complimentary work surfaces, built in Electric Double Oven, Electric Hob with Filter Hood, Integrated Fridge Freezer, Washing Machine and Dishwasher. Tiled floor, double glazed window and double glazed door to garden.
Landing:Wooden flooring, access to loft.
Bedroom: 4m x 3.02mWooden flooring, two double glazed windows.
Bedroom: 3.73m x 2.8mWooden flooring, two double glazed windows.
Bedroom: 3.05m x 2.7mWooden flooring, double glazed window.
Shower Room:Fitted with a three piece suite, comprising a tiled shower cubicle with glass door and rain fall shower, low level WC and vanity wash hand basin. Heated towel rail, tiled wall and floor, double glazed window.
Rear Garden:Decked patio, lawn with bordering flower beds and wooden shed/studio with power and lighting.
