Property Description
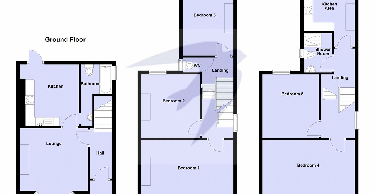
This substantial five bedroom period house offers generous and versatile accommodation arranged over three floors and presents an excellent opportunity for those looking to modernise and add value. The property benefits from two bathrooms and two kitchen areas, making it well suited to flexible living arrangements, multi-generational occupation or investment purposes.
To the ground floor, the accommodation comprises a welcoming lounge, a kitchen and a bathroom. The first floor provides three well proportioned bedrooms along with a separate WC. On the second floor there are two further bedrooms, a shower room and an additional kitchen area, enhancing the adaptability of the layout.
Externally, the property enjoys a rear garden, providing useful outdoor space. Ideally located, the house is within easy reach of Sidcup High Street, a range of local schools, Rose Bruford College, Bird College and Sidcup mainline station, offering convenient access to transport links and amenities.
Requiring some modernisation, this property represents an ideal purchase for an investor or for a buyer seeking to create a spacious and characterful family home in a popular and well connected location.
- Five Bedrooms
- Semi Detached
- Period Property
- Close to Sidcup Station
- Chain Free
- Versatile Accomodation
Rooms
Entrance HallHardwood door to front, double glazed window to side, wood style laminate flooring.
Lounge 4.5m x 3.78mDouble glazed bay window to front, wood style laminate flooring.
Kitchen 3.45m x 3.28mDouble glazed door to rear, matching range of wall and base units incorporating cupboards and drawers with complimentary worktops, stainless steel 1 and 1/2 bowl sink unit with drainer and mixer tap, integrated oven and hob with filter hood above, wood style laminate flooring.
Ground Floor BathroomDouble glazed window to side, panelled bath, low level WC, wash hand basin, part tiled walls, wood style laminate flooring.
First Floor LandingDouble glazed window to side, wood style laminate flooring.
Bedroom One 5.23m x 4.57m narrowing to 3.66mDouble glazed bay window to front, wood style laminate flooring.
Bedroom Two 3.56m x 3.28mDouble glazed window to rear, wood style laminate flooring.
Bedroom Three 3.7m x 2.9mDouble glazed window to rear, wood style laminate flooring.
W/CDouble glazed window to side, low level WC.
Second Floor LandingDouble glazed window to side, wood style laminate flooring.
Bedroom Four 3.56m x 3.28mTwo double glazed windows to front, wood style laminate flooring.
Bedroom Five 5.23m x 3.66mDouble glazed window to rear, wood style laminate flooring.
Second Floor Kitchen 2.92m x 2.3mDouble glazed window to rear, matching range of wall and base units incorporating cupboards and drawers with complimentary worktops, inset 1 and 1/2 bowl sink unit with drainer and mixer tap, integrated oven and hob with filter hood above, space for American style fringe/freezer, part tiled walls, wood style laminate flooring
Second Floor Shower RoomDouble glazed frosted window to side, enclosed shower cubicle, vanity wash hand basin, low level WC, chrome heated towel rail, part tiled walls, wood style laminate flooring.
Rear GardenPaved.
Front GardenShingled driveway.
