Property Description
** GUIDE PRICE £350,000 - £375,000 ** Well located for Slade Green station offering a very versatile space is this terraced family home which benefits from 2 reception rooms, conservatory and loft room.
- No onward chain
- Versatile accommodation
- Open plan lounge Diner
- Close to Slade Green station
- Ideal 1st time buy
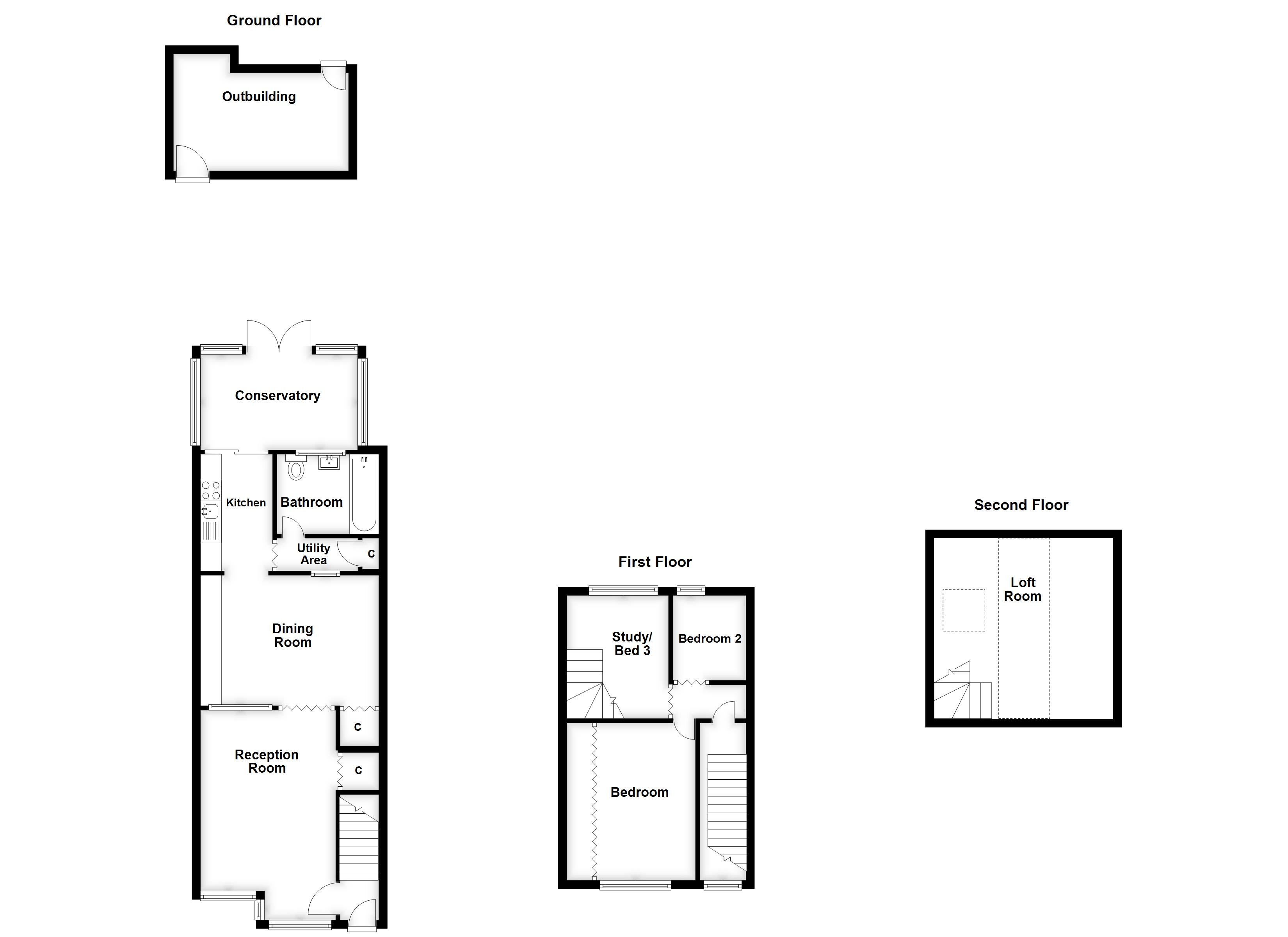
- Loft Room
Rooms
Reception Room 3.23m x 5.03mDining Room 4.27m x 3.12mKitchen 2.8m x 1.73mUtility Area 0.79m x 2.18mBathroom 2.06m x 1.7mConservatory 2.29m x 3.76mBedroom 1 3.07m x 3.76mBedroom 2 1.75m x 2.03mBedroom 3 2.44m x 2.95mLoft Room 3.35m x 4.32mGarden Outbuilding 2.8m x 4.2mUtilities:
Electricity
Ask Agent
Water
Ask Agent
Heating
Ask Agent
Gas
Ask Agent
Sewerage
Ask Agent
Rights & Restrictions:
Is the property listed?
Ask Agent
Are there any restrictions associated with the property?
Ask Agent
Are there any easements, servitudes, or wayleaves?
Ask Agent
Are there any public rights of way across the property or its boundaries?
Ask Agent
Flood and Erosion Risk:
Has there been any flooding in the last 5 years?
Ask Agent
Flooding sources affecting the property:
Ask Agent
Are there any flood defences:
Ask Agent
