Property Description
Guide Price £375,000
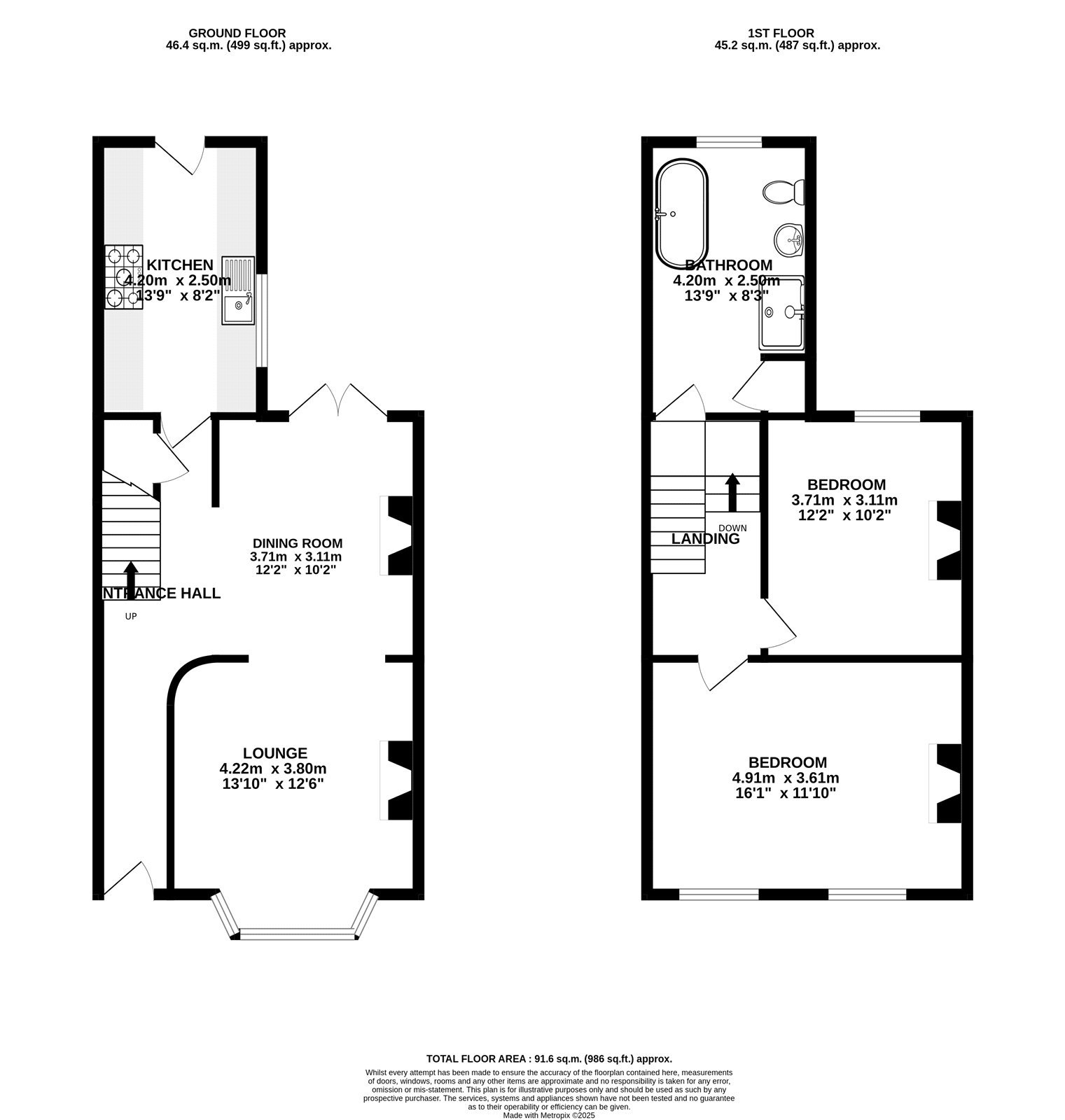
Located a short walk from Swanley station which offers swift services to London Bridge, Charing Cross, Victoria and Blackfriars is this fantastic period home. Offering to the ground floor an open plan layout with lounge, diner and hallway and separately a well proportioned kitchen. Upstairs you will find 2 great double bedrooms and a luxurious bathroom with bath and shower. Outside is a South facing rear garden with garage and parking space in front. If you are looking for a characterful home with convenient access to London, look no further.
- Period Cottage
- Deceptively Spacious
- 2 Double Bedrooms
- Open Plan Living
- Off Street Parking
- Garage
- 0.5 Miles To Station
- Chain Free
Rooms
Entrance Hall 6.4m x 1.68mAccess to reception rooms, kitchen and stairs to first floor. Radiator.
Reception Room 4.17m x 3.84mDouble glazed bay window to front. Feature fireplace. Stripped and polished original floor boards. Contemporary radiator. Open plan to dining room.
Dining Room 3.68m x 3.07mDouble glazed wooden French doors to rear. Feature fire place. Radiator. Open plan to hallway and reception room.
Kitchen 4.2m x 2.54mDouble glazed window to side and door to rear. Comprising a range of matching wall and base cabinets with countertop over and breakfast bar. Integrated double oven, 5 ring gas hob and extractor. Space for washing machine and fridge/freezer.
First Floor Landing 3.73m x 1.65mAccess to bedrooms, bathroom and loft.
Bedroom One 4.85m x 3.56mDual double glazed windows to front. Feature fireplace. Radiator.
Bedroom Two 3.7m x 3.12mDouble glazed window to rear. Feature fireplace. Radiator.
Bathroom 4.27m x 2.57mOpaque double glazed window to rear. Roll top bath. Walk in cubicle shower. Wash basin. Low level wc. Contemporary radiator. Airing cupboard.
