Property Description
Robinson Michael & Jackson are delighted to present this stunning 3-bedroom cottage on Horsham Lane, Rainham.
This beautifully maintained home offers a modern kitchen extension with an open-plan layout, perfect for family living and entertaining. The property features three double bedrooms, including a loft conversion with a stylish en-suite, providing comfort and privacy for all.
Externally, the home boasts a large landscaped rear garden, ideal for outdoor gatherings, and a rear driveway offering convenient off-road parking. A standout feature is the versatile log cabin, fully equipped with electricity and lighting, perfect as a home office, gym, or studio.
Presented in stunning condition throughout, this property is a rare find and a must-see for anyone looking for a combination of modern living, outdoor space, and practical extras in a highly desirable location.
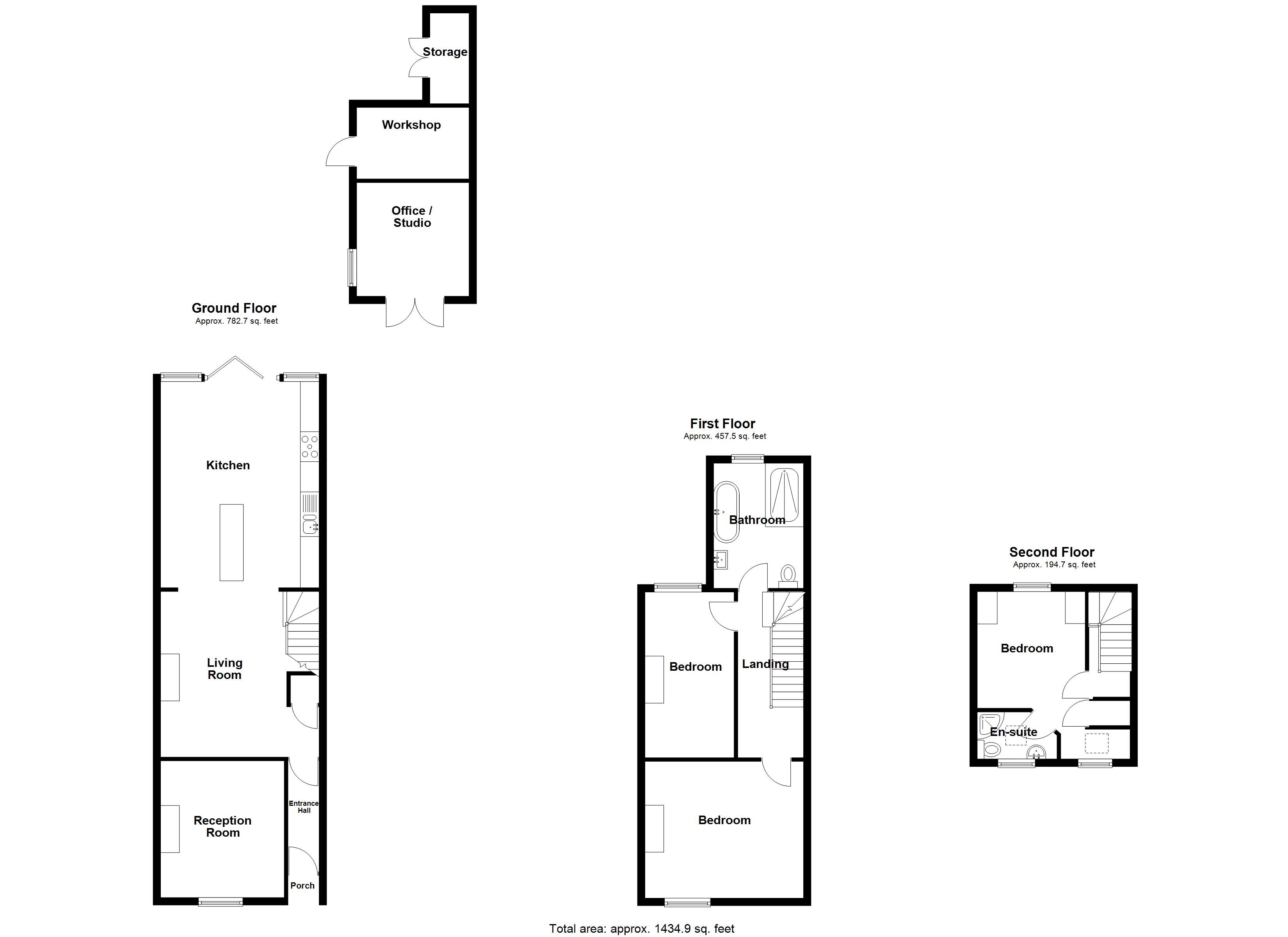
- Spacious home – 1434.9 sq. ft.
- Driveway to rear
- 3 double bedrooms – loft room with en-suite
- Stylish open-plan kitchen extension
- Immaculate condition throughout
- Generous landscaped rear garden
- Fantastic log cabin with power & lighting – ideal office/gym/studio
Rooms
Entrance Hallway 2.82m x 0.86mEngineered Hardwood Oak Flooring.
Lounge 3.63m x 3.25mDouble glazed window to front. Open fire place (coal and log fire) Carpet. Radiator.
Open Plan Kitchen Diner Dining Area 4.52m x 4.45mWood burning stove. Under stairs storage cupboard. Engineered Hardwood Oak Flooring.
Kitchen 5.75m x 4.07mRange of wall and base units with granite worksurface over & granite Island. Space for double oven, dishwasher and American fridge/freezer. Tiled flooring with underfloor heating.
Landing 4.5m x 1.72mCarpet.
Bedroom One 5.84m x 2.87mDouble glazed window to rear and front. Storage cupboard. Carpet. Radiator.
Ensuite 2.06m x 1.9mDouble glazed window to front. Shower. Low level WC. Wash hand basin. Tiled flooring. Radiator.
Bedroom Two 4.41m x 2.41mDouble glazed window to rear. Built in wardrobe. Carpet. Radiator.
Bedroom Three 3.89m x 3.63mDouble glazed window to front. Two buit in wardrobes. Carpet. Radiator.
Bathroom 3.4m x 2.4mDouble glazed window to rear. Walk in shower. Bath. Low level WC. Wash hand basin. Laminate flooring. Radiator.
Rear GardenPatio. Laid to lawn. Access to drive to rear. Shed.
