Property Description
*** Guide Price £475,000-£500,000 ***
Well Presented terraced house within a stone’s throw of Sydenham high street and station.
Benefitting from two double bedrooms, 16' lounge, private rear garden, allocated parking space and being sold with no onward chain.
Well located for Crystal Palace Park and the award winning Mayow Park.
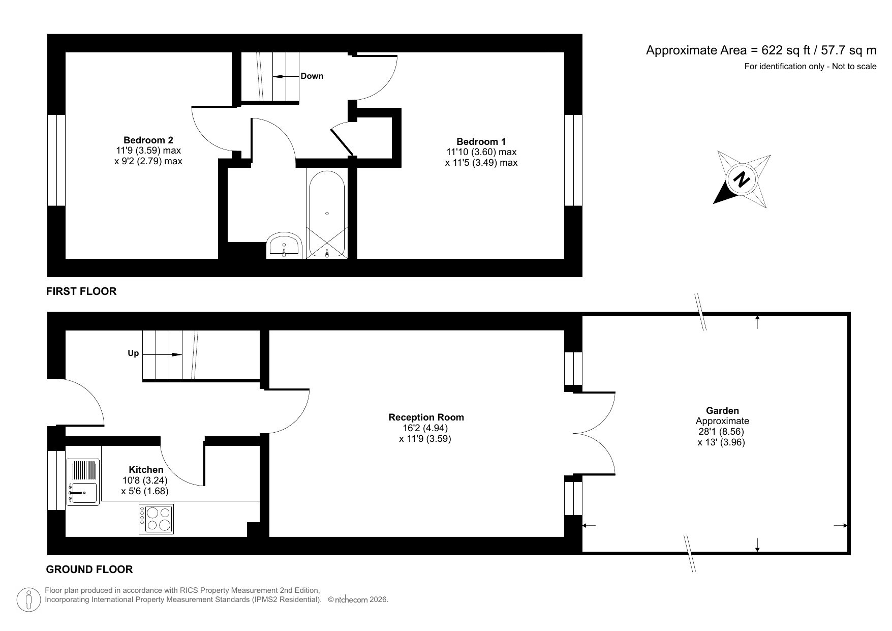
- Modern terraced house
- Two double bedrooms
- Modern kitchen and first floor bathroom
- Private rear garden
- Parking
- 16' Lounge
- Total floor area 59sqm
- Within a stone’s throw of Sydenham high street and station.
- Well located for Crystal Palace Park and the award winning Mayow Park.
Rooms
Entrance HallPart opaque double glazed entrance door, radiator, laminate flooring.
KitchenDouble glazed window to front, range of fitted wall and base units with work surface over, one bowl stainless steel sink unit with mixer tap, oven and hob to remain, plumbing for washing machine, space for fridge/freezer, wall mounted boiler, tiled splash back, vinyl flooring, coved and textured ceiling.
LoungeDouble glazed double doors to garden radiator, laminate flooring, coved and textured ceiling.
LandingStorage cupboard, carpet, access to loft, coved and textured ceiling.
Bedroom OneDouble glazed window to rear, radiator, laminate flooring, coved and textured ceiling with ceiling rose.
Bedroom TwoDouble glazed window to front, radiator, laminate flooring, coved and textured ceiling.
BathroomRadiator, three piece bathroom suite comprising of: panelled bath with mixer tap and mixer shower over, inset wash hand basin with mixer tap and vanity unit under, low level wc, vinyl flooring, part tiled walls, coved and textured ceiling.
Rear GardenPaved with two tiered paved areas, shed.
ParkingParking space for one car.
